Italiano
435.750 €

NEGOZIO ALL'ASTA

Negozio in vendita • Milano (V Giornate/ XXII Marzo/ Porta Romana) - Piazza del Tricolore, 4
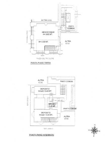
negozio posto su due livelli collegati tra loro da scala interna, al piano terreno composto da un locale a due luci su piazza del tricolore ed a due luci su viale premuda, ed al piano primo interrato sottostante composto da spazi adibiti a deposito, spogliatoio ed un bagno
negozio posto su due livelli collegati tra loro da scala interna, al piano terreno composto da un locale a due luci su piazza del tricolore ed a due luci su viale premuda, ed al piano primo interrato sottostante composto da spazi adibiti a deposito, spogliatoio ed un bagno
AFFARI ALL'ASTA è uno studio di consulenza che si occupa di aste immobiliari e saldo stralcio, dove il cliente viene seguito in tutto il percorso relativo all' acquisto tramite aste giudiziarie.
L' immobile viene venduto dal tribunale ed il prezzo indicato si riferisce all' offerta minima.
Contattaci per fissare un appuntamento per avere maggiori informazioni.
Per maggiori informazioni:
MILANO, VIA GIUSEPPE TARTINI, 12 (MI)
+39 3392588984
+39 3427176507

Per maggiori informazioni:
MILANO, VIA GIUSEPPE TARTINI, 12 (MI)
+39 3392588984
+39 3427176507
Caratteristiche principali
Codice
SNO129
Città
Milano (V Giornate/ XXII Marzo/ Porta Romana)
Categoria
Negozio
Prezzo
435.750 €
Locali
1
Bagni
1
Mq
105
Piano
Terra
Classe energetica
G
Stato Immobile
Buono
Grado
Medio
Posizione
Centro Storico
Panorama
Vista Aperta
Orientamento
Nord Ovest Sud Est
Arredi
Semi Arredato
Riscaldamento
Autonomo
Tipo Riscaldam.
Pompa di Calore
Tipo Impianto
Aria
Fonte Energetica
Elettrico
Infissi
Alluminio
Serramenti
Buono
Pavimento
Ceramica
Numero Vetrine
Quattro

Accessori: Aria Condizionata

Mappa
Piazza del Tricolore 4, Milano (MI)
Condividi su
Cookie preference