Italiano
90.000 €

TRILOCALE ALL'ASTA

3 locali in vendita • Parabiago - Via giacomo matteotti, 53
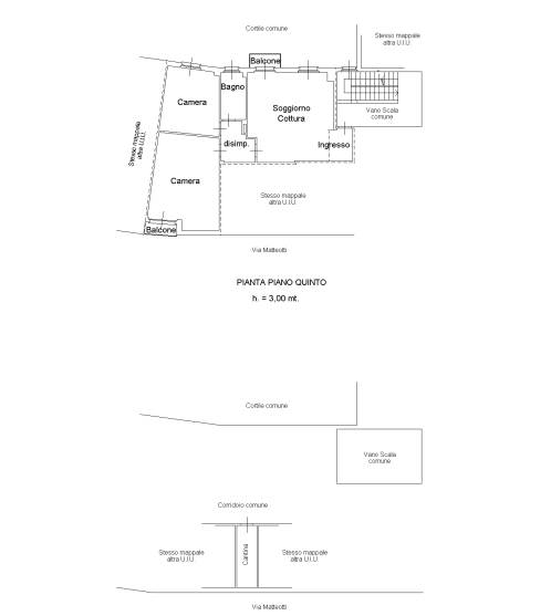
appartamento posto al 5° piano di un edificio residenziale, composto da 3 locali e servizi, 2 balconi, della superficie commerciale di mq 91,49 con annesso vano cantina a piano interrato, nonchè box auto singolo della superficie
posto a piano terreno in un corpo adiacente l'edificio principale, con ingresso dalla via San Mauro.
AFFARI ALL'ASTA è uno studio di consulenza che si occupa di aste immobiliari e saldo stralcio, dove il cliente viene seguito in tutto il percorso relativo all' acquisto tramite aste giudiziarie.
L' immobile viene venduto dal tribunale ed il prezzo indicato si riferisce all' offerta minima.
Contattaci per fissare un appuntamento per avere maggiori informazioni.
Per maggiori informazioni:
MILANO, VIA GIUSEPPE TARTINI, 12 (MI)
+39 3392588984
+39 3427176507

Per maggiori informazioni:
MILANO, VIA GIUSEPPE TARTINI, 12 (MI)
+39 3392588984
+39 3427176507
Caratteristiche principali
Codice
SNO12
Città
Parabiago
Categoria
3 locali
Prezzo
90.000 €
Locali
3
Mq
91
Box
1
Piano
5
Classe energetica
G
Stato Immobile
Buono
Grado
Medio
Posizione
Centro
Panorama
Vista Aperta
Orientamento
Nord Ovest Sud Est
Giardino
Cortile
Arredi
Semi Arredato
Tipo Soggiorno
Sala da Pranzo
Tipo Cucina
A Vista
Riscaldamento
Autonomo
Tipo Riscaldam.
Caldaia
Tipo Impianto
Radiatori
Fonte Energetica
Metano
Infissi
Legno
Serramenti
Buono
Persiana
Tapparella Legno
Pavim. Giorno
Ceramica
Pavim. Notte
Ceramica
Pavim. Cucina
Ceramica
Pavim. Bagno
Ceramica
Mappa
Via giacomo matteotti 53, Parabiago (MI)
Condividi su
Cookie preference