Italiano
60.480 €

MONOLOCALE ALL'ASTA

1 locale in vendita • Bollate - Piazza Martiri della Libertà, 5
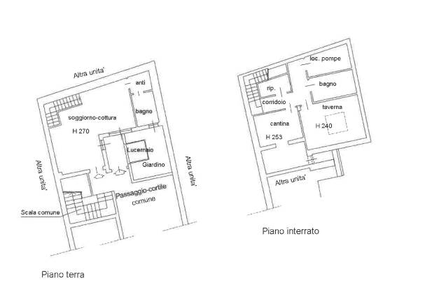
bollate (mi), piazza martiri della libertà n. 5 (con accesso dal civico n. 4), appartamento ad uso abitazione posto al piano terreno, composto da un locale e servizio oltre a piccolo giardino pertinenziale, collegato da scala interna al piano primo interrato composto da un locale taverna, cantina, ripostiglio sottoscala, locale tecnico oltre a servizio
AFFARI ALL'ASTA è uno studio di consulenza che si occupa di aste immobiliari e saldo stralcio, dove il cliente viene seguito in tutto il percorso relativo all' acquisto tramite aste giudiziarie.
L' immobile viene venduto dal tribunale ed il prezzo indicato si riferisce all' offerta minima.
Contattaci per fissare un appuntamento per avere maggiori informazioni.
Per maggiori informazioni:
MILANO, VIA GIUSEPPE TARTINI, 12 (MI)
+39 3392588984
+39 3427176507

Per maggiori informazioni:
MILANO, VIA GIUSEPPE TARTINI, 12 (MI)
+39 3392588984
+39 3427176507
Caratteristiche principali
Codice
SNO110
Città
Bollate
Categoria
1 locale
Prezzo
60.480 €
Locali
1
Mq
58
Piano
Terra
Classe energetica
G
Stato Immobile
Buono
Grado
Medio
Posizione
Periferia
Panorama
Vista Aperta
Orientamento
Nord Ovest Sud Est
Giardino
Privato
Arredi
Semi Arredato
Tipo Soggiorno
Sala da Pranzo
Tipo Cucina
A Vista
Riscaldamento
Autonomo
Tipo Riscaldam.
Caldaia
Tipo Impianto
Radiatori
Fonte Energetica
Metano
Infissi
Legno
Serramenti
Buono
Persiana
Persiana Legno
Pavim. Giorno
Ceramica
Pavim. Notte
Ceramica
Pavim. Cucina
Ceramica
Pavim. Bagno
Ceramica

Accessori: Porta Blindata

Mappa
Piazza Martiri della Libertà 5, Bollate (MI)
Condividi su
Cookie preference