Italiano
410.925 €

CAPANNONE ARTIGIANALE ALL'ASTA

Capannone in vendita • Vimodrone - Via Padana Superiore , 317
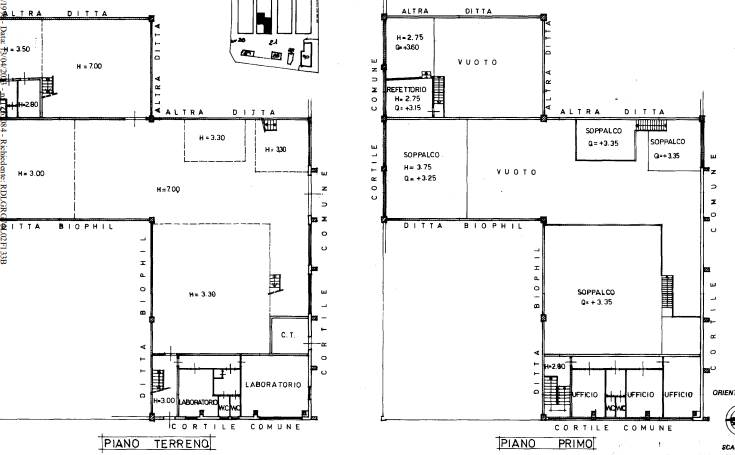
capannone di forma irregolare, comprensivo di servizi, centrale termica, soppalchi; a sud è presente un corpo su due livelli -collegati da scala interna- con locali destinati a laboratori/servizi al piano terra e uffici/servizi al piano primo. Presente area del cortile comune di proprietà condominiale ad uso esclusivo.
AFFARI ALL'ASTA è uno studio di consulenza che si occupa di aste immobiliari e saldo stralcio, dove il cliente viene seguito in tutto il percorso relativo all' acquisto tramite aste giudiziarie.
L' immobile viene venduto dal tribunale ed il prezzo indicato si riferisce all' offerta minima.
Contattaci per fissare un appuntamento per avere maggiori informazioni.
Per maggiori informazioni:
MILANO, VIA GIUSEPPE TARTINI, 12 (MI)
+39 3392588984
+39 3427176507

Per maggiori informazioni:
MILANO, VIA GIUSEPPE TARTINI, 12 (MI)
+39 3392588984
+39 3427176507

Caratteristiche principali
Codice
SNO102
Città
Vimodrone
Categoria
Capannone
Prezzo
410.925 €
Locali
4
Mq
1097
Piano
Terra
Classe energetica
G
Stato Immobile
Buono
Grado
Medio
Posizione
Periferia
Panorama
Vista Aperta
Orientamento
Nord Ovest Sud Est
Riscaldamento
Autonomo
Tipo Riscaldam.
Caldaia
Tipo Impianto
Radiatori
Fonte Energetica
Metano
Infissi
Alluminio
Serramenti
Buono
Pavimento
Ceramica
Destinazione
Artigianale

Accessori: Aria Condizionata

Mappa
Via Padana Superiore 317, Vimodrone (MI)
Condividi su
Cookie preference