Italiano
14.297 €

BILOCALE ALL'ASTA

2 locali in vendita • Voghera - Via Ugo Bassi, 23
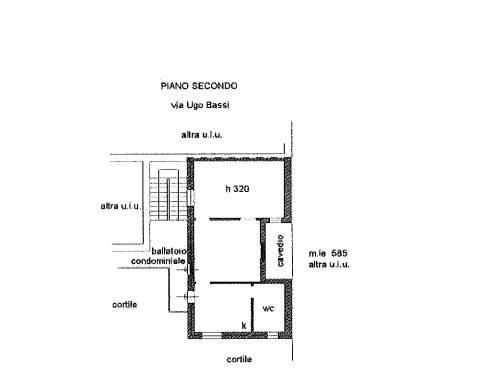
quota intera di 1000/1000 del diritto reale di piena proprietà relativo ad unità residenziale composta al piano secondo da ingresso/cucina, un locale senza finestre o aperture, un bagno, una camera da letto, una cantina al piano interrato; il tutto per una superficie commerciale di mq 53,60. Privo di riscaldamento
AFFARI ALL'ASTA è uno studio di consulenza che si occupa di aste immobiliari e saldo stralcio, dove il cliente viene seguito in tutto il percorso relativo all' acquisto tramite aste giudiziarie.
L' immobile viene venduto dal tribunale ed il prezzo indicato si riferisce all' offerta minima.
Contattaci per fissare un appuntamento per avere maggiori informazioni.
Per maggiori informazioni:
MILANO, VIA GIUSEPPE TARTINI, 12 (MI)
+39 3392588984
+39 3427176507

Per maggiori informazioni:
MILANO, VIA GIUSEPPE TARTINI, 12 (MI)
+39 3392588984
+39 3427176507


Caratteristiche principali
Codice
SMAR73
Città
Voghera
Categoria
2 locali
Prezzo
14.297 €
Locali
2
Bagni
1
Mq
53
Piano
2
Classe energetica
G
Stato Immobile
Buono
Grado
Medio
Posizione
Periferia
Panorama
Vista Aperta
Orientamento
Nord Ovest Sud Est
Giardino
Cortile
Arredi
Semi Arredato
Tipo Soggiorno
Sala da Pranzo
Tipo Cucina
A Vista
Infissi
Legno
Serramenti
Buono
Persiana
Persiana Legno
Pavim. Giorno
Ceramica
Pavim. Notte
Ceramica
Pavim. Cucina
Ceramica
Pavim. Bagno
Ceramica
Mappa
Via Ugo Bassi 23, Voghera (PV)
Condividi su
Cookie preference