Italiano
63.750 €

BILOCALE ALL'ASTA

2 locali in vendita • Trezzano sul Naviglio - Via ROMA , 14
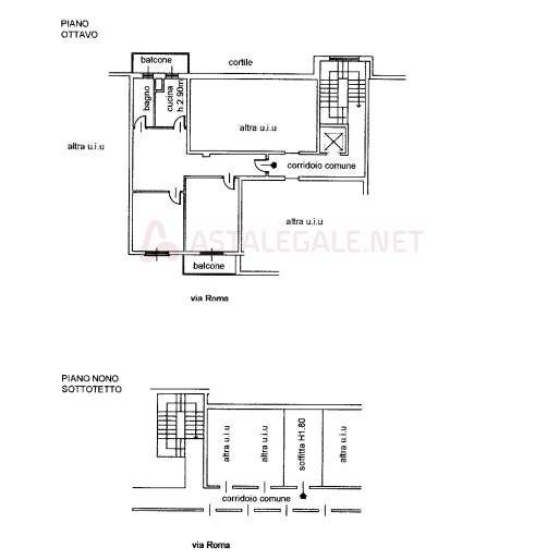
appartamento ad uso abitazione, posto al piano ottavo, composto da due locali oltre servizi, con annesso vano solaio al piano nono. Della superficie commerciale di 69 mq, dotato di ascensore e riscaldamento centralizzato
appartamento ad uso abitazione, posto al piano ottavo, composto da due locali oltre servizi, con annesso vano solaio al piano nono. Della superficie commerciale di 69 mq, dotato di ascensore e riscaldamento centralizzato
AFFARI ALL'ASTA è uno studio di consulenza che si occupa di aste immobiliari e saldo stralcio, dove il cliente viene seguito in tutto il percorso relativo all' acquisto tramite aste giudiziarie.
L' immobile viene venduto dal tribunale ed il prezzo indicato si riferisce all' offerta minima.
Contattaci per fissare un appuntamento per avere maggiori informazioni.
Per maggiori informazioni:
MILANO, VIA GIUSEPPE TARTINI, 12 (MI)
+39 3392588984
+39 3427176507

Per maggiori informazioni:
MILANO, VIA GIUSEPPE TARTINI, 12 (MI)
+39 3392588984
+39 3427176507
Caratteristiche principali
Codice
SMAR45
Città
Trezzano sul Naviglio
Categoria
2 locali
Prezzo
63.750 €
Locali
2
Mq
69
Piano
8
Classe energetica
G
Stato Immobile
Buono
Grado
Medio
Posizione
Centro
Panorama
Vista Aperta
Orientamento
Nord Ovest Sud Est
Giardino
Cortile
Arredi
Semi Arredato
Tipo Soggiorno
Sala da Pranzo
Tipo Cucina
A Vista
Riscaldamento
Centralizzato
Tipo Riscaldam.
Caldaia
Tipo Impianto
Radiatori
Fonte Energetica
Metano
Infissi
Metallo
Serramenti
Buono
Persiana
Tapparella PVC
Pavim. Giorno
Ceramica
Pavim. Notte
Ceramica
Pavim. Cucina
Ceramica
Pavim. Bagno
Ceramica

Accessori: Ascensore, Porta Blindata, Zanzariere

Mappa
Via ROMA 14, Trezzano sul Naviglio (MI)
Condividi su
Cookie preference