Italiano
42.750 €

TRILOCALE ALL'ASTA

3 locali in vendita • Jerago con Orago - Via vignoli, 8
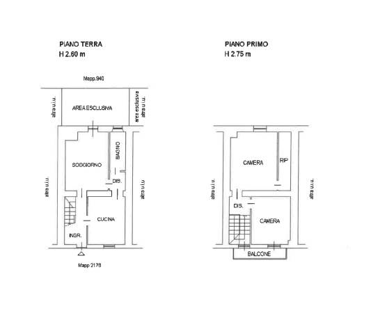
piena proprietà per 1/1 di porzione di edificio disposta su due livelli, composta da ingresso, soggiorno, cucina, bagno e un piccolo giardino ad uso esclusivo al piano terra; due camere, un ripostiglio e un balcone al piano primo.
piena proprietà per 1/1 di porzione di edificio disposta su due livelli, composta da ingresso, soggiorno, cucina, bagno e un piccolo giardino ad uso esclusivo al piano terra; due camere, un ripostiglio e un balcone al piano primo.
AFFARI ALL'ASTA è uno studio di consulenza che si occupa di aste immobiliari e saldo stralcio, dove il cliente viene seguito in tutto il percorso relativo all' acquisto tramite aste giudiziarie.
L' immobile viene venduto dal tribunale ed il prezzo indicato si riferisce all' offerta minima.
Contattaci per fissare un appuntamento per avere maggiori informazioni.
Per maggiori informazioni:
MILANO, VIA GIUSEPPE TARTINI, 12 (MI)
+39 3392588984
+39 3427176507

Per maggiori informazioni:
MILANO, VIA GIUSEPPE TARTINI, 12 (MI)
+39 3392588984
+39 3427176507
Caratteristiche principali
Codice
SMAR287
Città
Jerago con Orago
Categoria
3 locali
Prezzo
42.750 €
Locali
3
Bagni
1
Mq
108
Piano
Terra
Classe energetica
G
Stato Immobile
Buono
Grado
Medio
Posizione
Centro
Panorama
Vista Aperta
Orientamento
Nord Ovest Sud Est
Giardino
Cortile
Arredi
Semi Arredato
Tipo Soggiorno
Sala da Pranzo
Tipo Cucina
A Vista
Riscaldamento
Autonomo
Tipo Riscaldam.
Caldaia
Tipo Impianto
Radiatori
Fonte Energetica
Metano
Infissi
PVC
Serramenti
Buono
Persiana
Tapparella Legno
Pavim. Giorno
Ceramica
Pavim. Notte
Ceramica
Pavim. Cucina
Ceramica
Pavim. Bagno
Ceramica

Accessori: Ripostiglio

Mappa
Via vignoli 8, Jerago con Orago (VA)
Condividi su
Cookie preference