Italiano
9.177 €

GARAGE ALL'ASTA

Garage in vendita • Arluno - Via Dante Alighieri, 6
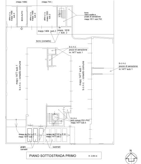
Piena proprietà, garage all'asta, sito in Arluno alla Via Dante Alighieri 6, posto al piano primo interrato, della superficie commerciale di 16 mq, privo di saracinesca
Piena proprietà, garage all'asta, sito in Arluno alla Via Dante Alighieri 6, posto al piano primo interrato, della superficie commerciale di 16 mq, privo di saracinesca
Caratteristiche principali
Codice
SMAR264
Città
Arluno
Categoria
Garage
Prezzo
9.177 €
Locali
1
Mq
16
Piano
Interrato
Classe energetica
G
Stato Immobile
Buono
Grado
Medio
Posizione
Centro
Pavimento
Cemento
Tipo Saracinesca
No
Mappa
Via Dante Alighieri 6, Arluno (MI)
Condividi su
Cookie preference