Italiano
90.750 €

PORZIONE VILLA TRIFAMILIARE ALL'ASTA

4 o più locali in vendita • Sordio - Via tulipani , 5
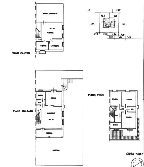
porzione di villa trifamiliare distribuita su tre piani composta da soggiorno, cucina, due camere da letto, studio, due bagni, locale disimpegno cantina e box, della superficie commerciale di 121 mq
porzione di villa trifamiliare distribuita su tre piani composta da soggiorno, cucina, due camere da letto, studio, due bagni, locale disimpegno cantina e box, della superficie commerciale di 121 mq
AFFARI ALL'ASTA è uno studio di consulenza che si occupa di aste immobiliari e saldo stralcio, dove il cliente viene seguito in tutto il percorso relativo all' acquisto tramite aste giudiziarie.
L' immobile viene venduto dal tribunale ed il prezzo indicato si riferisce all' offerta minima.
Contattaci per fissare un appuntamento per avere maggiori informazioni.
Per maggiori informazioni:
MILANO, VIA GIUSEPPE TARTINI, 12 (MI)
+39 3392588984
+39 3427176507

Per maggiori informazioni:
MILANO, VIA GIUSEPPE TARTINI, 12 (MI)
+39 3392588984
+39 3427176507

Caratteristiche principali
Codice
SMAR184
Città
Sordio
Categoria
4 o più locali
Prezzo
90.750 €
Locali
4
Bagni
2
Mq
121
Box
1
Piano
Terra
Classe energetica
G
Stato Immobile
Buono
Grado
Medio
Posizione
Periferia
Panorama
Vista Aperta
Orientamento
Nord Ovest Sud Est
Giardino
Cortile
Arredi
Semi Arredato
Tipo Soggiorno
Sala da Pranzo
Tipo Cucina
A Vista
Riscaldamento
Autonomo
Tipo Riscaldam.
Caldaia
Tipo Impianto
Radiatori
Fonte Energetica
Metano
Infissi
Legno
Serramenti
Buono
Persiana
Persiana Legno
Pavim. Giorno
Ceramica
Pavim. Notte
Ceramica
Pavim. Cucina
Ceramica
Pavim. Bagno
Ceramica

Accessori: Stufa a Pellet

Mappa
Via tulipani 5, Sordio (LO)
Condividi su
Cookie preference