Italiano
38.400 €

TRILOCALE ALL'ASTA

3 locali in vendita • Cerro Maggiore - Via xxv aprile, 1
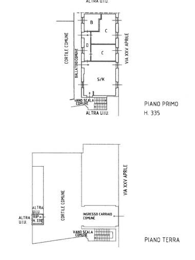
appartamento della superficie commerciale di 82,38 mq al piano P1 in edificio a ballatoio, con ripostiglio al PT in cortile comune, composto da tre locali con servizi, sito in Cerro Maggiore alla Via XXV Aprile 1.
appartamento della superficie commerciale di 82,38 mq al piano P1 in edificio a ballatoio, con ripostiglio al PT in cortile comune, composto da tre locali con servizi, sito in Cerro Maggiore alla Via XXV Aprile 1.
AFFARI ALL'ASTA è uno studio di consulenza che si occupa di aste immobiliari e saldo stralcio, dove il cliente viene seguito in tutto il percorso relativo all' acquisto tramite aste giudiziarie.
L' immobile viene venduto dal tribunale ed il prezzo indicato si riferisce all' offerta minima.
Contattaci per fissare un appuntamento per avere maggiori informazioni.
Per maggiori informazioni:
MILANO, VIA GIUSEPPE TARTINI, 12 (MI)
+39 3392588984
+39 3427176507

Per maggiori informazioni:
MILANO, VIA GIUSEPPE TARTINI, 12 (MI)
+39 3392588984
+39 3427176507

Caratteristiche principali
Codice
SMAR18
Città
Cerro Maggiore
Categoria
3 locali
Prezzo
38.400 €
Locali
3
Bagni
1
Mq
82
Piano
1
Classe energetica
G
Stato Immobile
Buono
Grado
Medio
Posizione
Centro
Panorama
Vista Aperta
Orientamento
Nord Ovest Sud Est
Giardino
Cortile
Arredi
Semi Arredato
Tipo Soggiorno
Sala da Pranzo
Tipo Cucina
A Vista
Riscaldamento
Autonomo
Tipo Riscaldam.
Caldaia
Tipo Impianto
Radiatori
Fonte Energetica
Metano
Infissi
Legno
Serramenti
Buono
Persiana
Persiana Legno
Pavim. Giorno
Ceramica
Pavim. Notte
Ceramica
Pavim. Cucina
Ceramica
Pavim. Bagno
Ceramica

Accessori: Aria Condizionata, Ripostiglio

Mappa
Via xxv aprile 1, Cerro Maggiore (MI)
Condividi su
Cookie preference