Italiano
18.000 €

GARAGE ALL'ASTA

Garage in vendita • Milano (Greco/ Monza/ Palmanova) - Viale Monza, 212
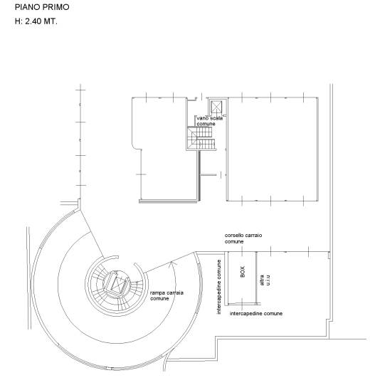
Piena proprietà, autorimessa singola, posta al piano primo, della superficie commerciale di 14 mq, dotata di saracinesca manuale e basculante, sita in Milano, Viale Monza 212
Piena proprietà, autorimessa singola, posta al piano primo, della superficie commerciale di 14 mq, dotata di saracinesca manuale e basculante, sita in Milano, Viale Monza 212
AFFARI ALL'ASTA è uno studio di consulenza che si occupa di aste immobiliari e saldo stralcio, dove il cliente viene seguito in tutto il percorso relativo all' acquisto tramite aste giudiziarie.
L' immobile viene venduto dal tribunale ed il prezzo indicato si riferisce all' offerta minima.
Contattaci per fissare un appuntamento per avere maggiori informazioni.
Per maggiori informazioni:
MILANO, VIA GIUSEPPE TARTINI, 12 (MI)
+39 3392588984
+39 3427176507

Per maggiori informazioni:
MILANO, VIA GIUSEPPE TARTINI, 12 (MI)
+39 3392588984
+39 3427176507
Caratteristiche principali
Codice
SMAR155
Città
Milano (Greco/ Monza/ Palmanova)
Categoria
Garage
Prezzo
18.000 €
Locali
1
Mq
14
Piano
1
Classe energetica
G
Stato Immobile
Buono
Grado
Medio
Posizione
Periferia
Pavimento
Cemento
Tipo Saracinesca
Manuale

Accessori: Ascensore

Mappa
Viale Monza 212, Milano (MI)
Condividi su
Cookie preference