Italiano
94.080 €

TRILOCALE ALL'ASTA

3 locali in vendita • Milano (Lotto/ Novara/ S. Siro) - Via Ponte del Giuscano , 8
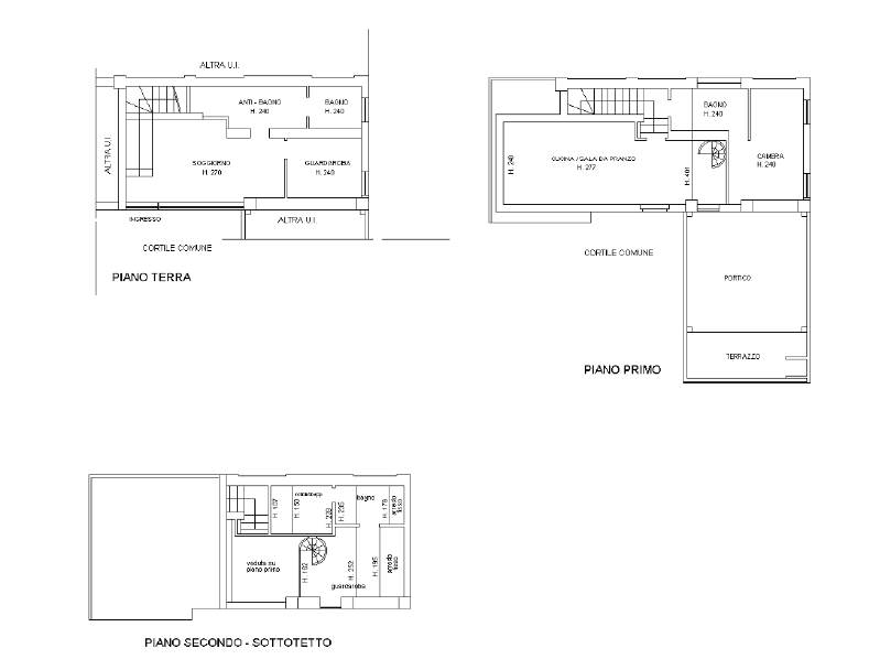
appartamento piano terra.: soggiorno, due locali, bagno; piano primo cucina, due locali, bagno; piano sottotetto un locale e bagno. Della superficie commerciale di 127 mq
appartamento piano terra.: soggiorno, due locali, bagno; piano primo cucina, due locali, bagno; piano sottotetto un locale e bagno. Della superficie commerciale di 127 mq
AFFARI ALL'ASTA è uno studio di consulenza che si occupa di aste immobiliari e saldo stralcio, dove il cliente viene seguito in tutto il percorso relativo all' acquisto tramite aste giudiziarie.
L' immobile viene venduto dal tribunale ed il prezzo indicato si riferisce all' offerta minima.
Contattaci per fissare un appuntamento per avere maggiori informazioni.
Per maggiori informazioni:
MILANO, VIA GIUSEPPE TARTINI, 12 (MI)
+39 3392588984
+39 3427176507

Per maggiori informazioni:
MILANO, VIA GIUSEPPE TARTINI, 12 (MI)
+39 3392588984
+39 3427176507
Caratteristiche principali
Codice
SGE95
Città
Milano (Lotto/ Novara/ S. Siro)
Categoria
3 locali
Prezzo
94.080 €
Locali
3
Bagni
1
Mq
127
Piano
Terra
Classe energetica
G
Stato Immobile
Buono
Grado
Medio
Posizione
Periferia
Panorama
Vista Aperta
Orientamento
Nord Ovest Sud Est
Giardino
Cortile
Arredi
Semi Arredato
Tipo Soggiorno
Sala da Pranzo
Tipo Cucina
A Vista
Riscaldamento
Autonomo
Tipo Riscaldam.
Caldaia
Tipo Impianto
Radiatori
Fonte Energetica
Metano
Infissi
PVC
Serramenti
Buono
Pavim. Giorno
Parquet
Pavim. Notte
Parquet
Pavim. Cucina
Parquet
Pavim. Bagno
Ceramica

Accessori: Aria Condizionata, Porta Blindata

Mappa
Via Ponte del Giuscano 8, Milano (MI)
Condividi su
Cookie preference