Italiano
44.250 €

BILOCALE ALL'ASTA

2 locali in vendita • Garbagnate Milanese - Via Paolo Borsellino, 41
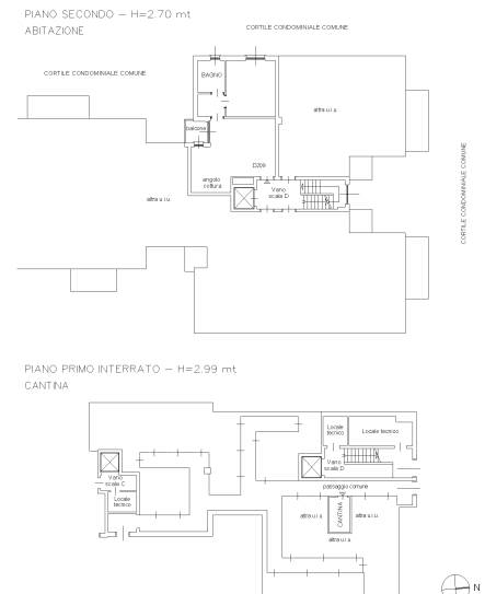
garbagnate milanese, via paolo borsellino n. 41: piena proprietà di appartamento al piano secondo della scala d, composto da soggiorno con angolo cottura, camera, bagno, disimpegno, ripostiglio e balcone, con annessa cantina a piano interrato.
garbagnate milanese, via paolo borsellino n. 41: piena proprietà di appartamento al piano secondo della scala d, composto da soggiorno con angolo cottura, camera, bagno, disimpegno, ripostiglio e balcone, con annessa cantina a piano interrato.
AFFARI ALL'ASTA è uno studio di consulenza che si occupa di aste immobiliari e saldo stralcio, dove il cliente viene seguito in tutto il percorso relativo all' acquisto tramite aste giudiziarie.
L' immobile viene venduto dal tribunale ed il prezzo indicato si riferisce all' offerta minima.
Contattaci per fissare un appuntamento per avere maggiori informazioni.
Per maggiori informazioni:
MILANO, VIA GIUSEPPE TARTINI, 12 (MI)
+39 3392588984
+39 3427176507

Per maggiori informazioni:
MILANO, VIA GIUSEPPE TARTINI, 12 (MI)
+39 3392588984
+39 3427176507
Caratteristiche principali
Codice
SGE93
Città
Garbagnate Milanese
Categoria
2 locali
Prezzo
44.250 €
Locali
2
Bagni
1
Mq
59
Piano
2
Classe energetica
G
Stato Immobile
Buono
Grado
Medio
Posizione
Periferia
Panorama
Vista Aperta
Orientamento
Nord Ovest Sud Est
Giardino
Cortile
Arredi
Non Arredato
Tipo Soggiorno
Sala da Pranzo
Tipo Cucina
A Vista
Riscaldamento
Centralizzato
Tipo Riscaldam.
Caldaia
Tipo Impianto
Radiatori
Fonte Energetica
Metano
Infissi
Metallo Doppio Vetro
Serramenti
Buono
Persiana
Tapparella PVC
Pavim. Giorno
Ceramica
Pavim. Notte
Parquet
Pavim. Cucina
Ceramica
Pavim. Bagno
Ceramica

Accessori: Ascensore, Porta Blindata

Mappa
Via Paolo Borsellino 41, Garbagnate Milanese (MI)
Condividi su
Cookie preference