Italiano
79.500 €

QUADRILOCALE ALL'ASTA

4 o più locali in vendita • Garbagnate Milanese - Via Paolo Borsellino, 41
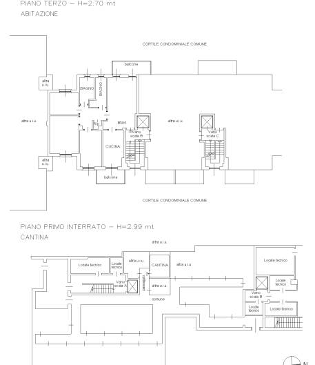
garbagnate milanese, via paolo borsellino n. 41: piena proprietà di appartamento al piano terzo della scala b, composto da soggiorno, cucina, due camere, uno studio, due bagni, disimpegno, ripostiglio e due balconi, con annessi cantina e box a piano interrato.
garbagnate milanese, via paolo borsellino n. 41: piena proprietà di appartamento al piano terzo della scala b, composto da soggiorno, cucina, due camere, uno studio, due bagni, disimpegno, ripostiglio e due balconi, con annessi cantina e box a piano interrato.
AFFARI ALL'ASTA è uno studio di consulenza che si occupa di aste immobiliari e saldo stralcio, dove il cliente viene seguito in tutto il percorso relativo all' acquisto tramite aste giudiziarie.
L' immobile viene venduto dal tribunale ed il prezzo indicato si riferisce all' offerta minima.
Contattaci per fissare un appuntamento per avere maggiori informazioni.
Per maggiori informazioni:
MILANO, VIA GIUSEPPE TARTINI, 12 (MI)
+39 3392588984
+39 3427176507

Per maggiori informazioni:
MILANO, VIA GIUSEPPE TARTINI, 12 (MI)
+39 3392588984
+39 3427176507
Caratteristiche principali
Codice
SGE89
Città
Garbagnate Milanese
Categoria
4 o più locali
Prezzo
79.500 €
Locali
4
Bagni
2
Mq
97
Box
1
Piano
3
Classe energetica
G
Stato Immobile
Buono
Grado
Medio
Posizione
Periferia
Panorama
Vista Aperta
Orientamento
Nord Ovest Sud Est
Giardino
Cortile
Arredi
Semi Arredato
Tipo Soggiorno
Sala da Pranzo
Tipo Cucina
A Vista
Riscaldamento
Centralizzato
Tipo Riscaldam.
Caldaia
Tipo Impianto
Radiatori
Fonte Energetica
Metano
Infissi
Metallo Doppio Vetro
Serramenti
Buono
Persiana
Tapparella PVC
Pavim. Giorno
Parquet
Pavim. Notte
Parquet
Pavim. Cucina
Parquet
Pavim. Bagno
Ceramica

Accessori: Ascensore, Porta Blindata, Ripostiglio

Mappa
Via Paolo Borsellino 41, Garbagnate Milanese (MI)
Condividi su
Cookie preference