Italiano
22.556 €

QUADRILOCALE ALL'ASTA

4 o più locali in vendita • Sannazzaro de' Burgondi - Via fornaci, 1
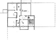
Unità immobiliare al piano primo, composta da ingresso su soggiorno, cucina, ulteriore soggiorno sul lato est realizzato con chiusura di una veranda già esistente, disimpegno su due camere da letto e servizio igienico, oltre ad ampio salone sul lato nord nel quale è stato realizzato un piccolo locale ripostiglio; l'ingresso avviene tramite una scala esterna dal cortile che conduce al portico al piano primo, dal quale si accede direttamente al soggiorno cucina; è presente un ulteriore ingresso sul lato nord che conduce ad un vano scala di collegamento tra pian terreno e primo piano, nonché un ultimo accesso sul salone posto sul lato nord, sempre con accesso al vano scala suindicato.
AFFARI ALL'ASTA è uno studio di consulenza che si occupa di aste immobiliari e saldo stralcio, dove il cliente viene seguito in tutto il percorso relativo all' acquisto tramite aste giudiziarie.
L' immobile viene venduto dal tribunale ed il prezzo indicato si riferisce all' offerta minima.
Contattaci per fissare un appuntamento per avere maggiori informazioni.
Per maggiori informazioni:
MILANO, VIA GIUSEPPE TARTINI, 12 (MI)
+39 3392588984
+39 3427176507

Per maggiori informazioni:
MILANO, VIA GIUSEPPE TARTINI, 12 (MI)
+39 3392588984
+39 3427176507
Caratteristiche principali
Codice
SGE74
Città
Sannazzaro de' Burgondi
Categoria
4 o più locali
Prezzo
22.556 €
Locali
4
Mq
83
Piano
1
Classe energetica
G
Stato Immobile
Buono
Grado
Medio
Posizione
Periferia
Panorama
Vista Aperta
Orientamento
Nord Ovest Sud Est
Giardino
Cortile
Arredi
Semi Arredato
Tipo Soggiorno
Doppio
Tipo Cucina
A Vista
Riscaldamento
Centralizzato
Tipo Riscaldam.
Caldaia
Tipo Impianto
Radiatori
Fonte Energetica
Metano
Infissi
Alluminio Doppio Vetro
Serramenti
Buono
Pavim. Giorno
Ceramica
Pavim. Notte
Ceramica
Pavim. Cucina
Ceramica
Pavim. Bagno
Ceramica

Accessori: Camino, Ripostiglio

Mappa
Via fornaci 1, Sannazzaro de' Burgondi (PV)
Condividi su
Cookie preference