Italiano
29.110 €

NEGOZIO ALL'ASTA

Negozio in vendita • San Rocco al Porto - Via Roma, 31
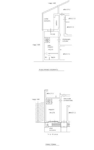
locale commerciale disposto su due piani, posto al piano terra negozio, al piano interrato retronegozio e bagno, della superficie commerciale di 68 mq, dotato di aria condizionata
locale commerciale disposto su due piani, posto al piano terra negozio, al piano interrato retronegozio e bagno, della superficie commerciale di 68 mq, dotato di aria condizionata
AFFARI ALL'ASTA è uno studio di consulenza che si occupa di aste immobiliari e saldo stralcio, dove il cliente viene seguito in tutto il percorso relativo all' acquisto tramite aste giudiziarie.
L' immobile viene venduto dal tribunale ed il prezzo indicato si riferisce all' offerta minima.
Contattaci per fissare un appuntamento per avere maggiori informazioni.
Per maggiori informazioni:
MILANO, VIA GIUSEPPE TARTINI, 12 (MI)
+39 3392588984
+39 3427176507

Per maggiori informazioni:
MILANO, VIA GIUSEPPE TARTINI, 12 (MI)
+39 3392588984
+39 3427176507

Caratteristiche principali
Codice
SGE72
Città
San Rocco al Porto
Categoria
Negozio
Prezzo
29.110 €
Locali
1
Mq
68
Piano
Terra
Classe energetica
G
Stato Immobile
Buono
Grado
Medio
Posizione
Periferia
Panorama
Vista Aperta
Orientamento
Nord Ovest Sud Est
Arredi
Semi Arredato
Riscaldamento
Autonomo
Tipo Riscaldam.
Pompa di Calore
Tipo Impianto
Aria
Fonte Energetica
Elettrico
Infissi
Alluminio Doppio Vetro
Serramenti
Buono
Pavimento
Ceramica
Numero Vetrine
Una

Accessori: Aria Condizionata, Porta Blindata

Mappa
Via Roma 31, San Rocco al Porto (LO)
Condividi su
Cookie preference