Italiano
87.000 €

BILOCALE ALL'ASTA

2 locali in vendita • Villa Cortese - Via Emilia, 37
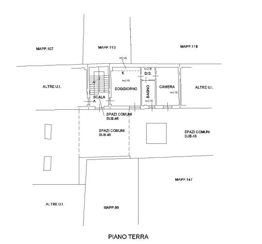
piena proprietà di un appartamento al piano terra, scala a, composto da soggiorno con angolo cottura, disimpegno, camera e bagno, della superficie commerciale di 57 mq, oltre a box autorimessa al piano interrato, della superficie commerciale di 45 mq.
piena proprietà di un appartamento al piano terra, scala a, composto da soggiorno con angolo cottura, disimpegno, camera e bagno, della superficie commerciale di 57 mq, oltre a box autorimessa al piano interrato, della superficie commerciale di 45 mq.
AFFARI ALL'ASTA è uno studio di consulenza che si occupa di aste immobiliari e saldo stralcio, dove il cliente viene seguito in tutto il percorso relativo all' acquisto tramite aste giudiziarie.
L' immobile viene venduto dal tribunale ed il prezzo indicato si riferisce all' offerta minima.
Contattaci per fissare un appuntamento per avere maggiori informazioni.
Per maggiori informazioni:
MILANO, VIA GIUSEPPE TARTINI, 12 (MI)
+39 3392588984
+39 3427176507

Per maggiori informazioni:
MILANO, VIA GIUSEPPE TARTINI, 12 (MI)
+39 3392588984
+39 3427176507
Caratteristiche principali
Codice
SGE7
Città
Villa Cortese
Categoria
2 locali
Prezzo
87.000 €
Locali
2
Bagni
1
Mq
57
Box
1
Piano
Terra
Classe energetica
G
Stato Immobile
Buono
Grado
Medio
Posizione
Centro Storico
Panorama
Vista Aperta
Orientamento
Nord Ovest Sud Est
Arredi
Semi Arredato
Tipo Soggiorno
Sala da Pranzo
Tipo Cucina
A Vista
Riscaldamento
Centralizzato
Tipo Riscaldam.
Caldaia
Tipo Impianto
Pavimento
Fonte Energetica
Metano
Infissi
Legno
Serramenti
Buono
Persiana
Persiana Legno
Pavim. Giorno
Ceramica
Pavim. Notte
Ceramica
Pavim. Cucina
Ceramica
Pavim. Bagno
Ceramica

Accessori: Porta Blindata

Mappa
Via Emilia 37, Villa Cortese (MI)
Condividi su
Cookie preference