Italiano
39.750 €

BILOCALE ALL'ASTA

2 locali in vendita • Massalengo - Via Fratelli Marini , 5
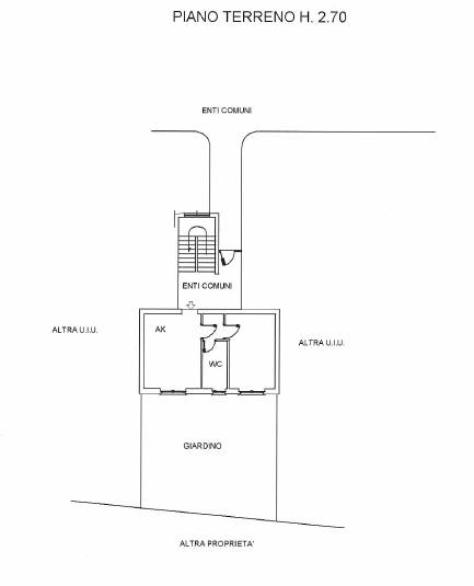
piena proprietà di appartamento composto da soggiorno con angolo cottura, camera da letto, disimpegno, bagno e giardino esclusivo. La superficie commerciale di 50 mq circa
piena proprietà di appartamento composto da soggiorno con angolo cottura, camera da letto, disimpegno, bagno e giardino esclusivo. La superficie commerciale di 50 mq circa
AFFARI ALL'ASTA è uno studio di consulenza che si occupa di aste immobiliari e saldo stralcio, dove il cliente viene seguito in tutto il percorso relativo all' acquisto tramite aste giudiziarie.
L' immobile viene venduto dal tribunale ed il prezzo indicato si riferisce all' offerta minima.
Contattaci per fissare un appuntamento per avere maggiori informazioni.
Per maggiori informazioni:
MILANO, VIA GIUSEPPE TARTINI, 12 (MI)
+39 3392588984
+39 3427176507

Per maggiori informazioni:
MILANO, VIA GIUSEPPE TARTINI, 12 (MI)
+39 3392588984
+39 3427176507
Caratteristiche principali
Codice
SGE67
Città
Massalengo
Categoria
2 locali
Prezzo
39.750 €
Locali
2
Bagni
1
Mq
50
Piano
Terra
Classe energetica
G
Stato Immobile
Buono
Grado
Medio
Posizione
Centro
Panorama
Vista Aperta
Orientamento
Nord Ovest Sud Est
Giardino
Cortile
Arredi
Semi Arredato
Tipo Soggiorno
Sala da Pranzo
Tipo Cucina
A Vista
Riscaldamento
Autonomo
Tipo Riscaldam.
Caldaia
Tipo Impianto
Radiatori
Fonte Energetica
Metano
Infissi
Legno
Serramenti
Buono
Persiana
Persiana Legno
Pavim. Giorno
Ceramica
Pavim. Notte
Ceramica
Pavim. Cucina
Ceramica
Pavim. Bagno
Ceramica

Accessori: Porta Blindata

Mappa
Via Fratelli Marini 5, Massalengo (LO)
Condividi su
Cookie preference