Italiano
105.000 €

TRILOCALE ALL'ASTA

3 locali in vendita • Legnano - Via lombardia, 6
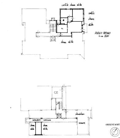
Appartamento ad uso civile abitazione, a parte di fabbricato condominiale denominato Gemini, posto al piano primo e composto da tre locali oltre cucina, servizio, disimpegno e due balconcini oltre ad annessi e pertinenziali vano uso cantina ed autorimessa posti al piano interrato.
Appartamento ad uso civile abitazione, a parte di fabbricato condominiale denominato Gemini, posto al piano primo e composto da tre locali oltre cucina, servizio, disimpegno e due balconcini oltre ad annessi e pertinenziali vano uso cantina ed autorimessa posti al piano interrato.
AFFARI ALL'ASTA è uno studio di consulenza che si occupa di aste immobiliari e saldo stralcio, dove il cliente viene seguito in tutto il percorso relativo all' acquisto tramite aste giudiziarie.
L' immobile viene venduto dal tribunale ed il prezzo indicato si riferisce all' offerta minima.
Contattaci per fissare un appuntamento per avere maggiori informazioni.
Per maggiori informazioni:
MILANO, VIA GIUSEPPE TARTINI, 12 (MI)
+39 3392588984
+39 3427176507

Per maggiori informazioni:
MILANO, VIA GIUSEPPE TARTINI, 12 (MI)
+39 3392588984
+39 3427176507

Caratteristiche principali
Codice
SGE6
Città
Legnano
Categoria
3 locali
Prezzo
105.000 €
Locali
3
Mq
81
Box
1
Piano
1
Classe energetica
G
Stato Immobile
Buono
Grado
Medio
Posizione
Periferia
Panorama
Vista Aperta
Orientamento
Nord Ovest Sud Est
Giardino
Cortile
Arredi
Semi Arredato
Tipo Soggiorno
Sala da Pranzo
Tipo Cucina
A Vista
Riscaldamento
Autonomo
Tipo Riscaldam.
Caldaia
Tipo Impianto
Radiatori
Fonte Energetica
Metano
Infissi
Alluminio
Serramenti
Buono
Persiana
Tapparella PVC
Pavim. Giorno
Ceramica
Pavim. Notte
Ceramica
Pavim. Cucina
Ceramica
Pavim. Bagno
Ceramica

Accessori: Ascensore

Mappa
Via lombardia 6, Legnano (MI)
Condividi su
Cookie preference