Italiano
169.250 €

TRILOCALE ALL'ASTA

3 locali in vendita • Seregno - Via Cadore, 120
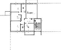
appartamento ad uso abitazione al piano primo con accesso dalla scala 'f', composto da ingresso, soggiorno, cucina, due camere, due bagni, disimpegno e due balconi; box ad uso autorimessa privata pertinenziale all'unità abitativa al piano terra.
appartamento ad uso abitazione al piano primo con accesso dalla scala 'f', composto da ingresso, soggiorno, cucina, due camere, due bagni, disimpegno e due balconi; box ad uso autorimessa privata pertinenziale all'unità abitativa al piano terra.
AFFARI ALL'ASTA è uno studio di consulenza che si occupa di aste immobiliari e saldo stralcio, dove il cliente viene seguito in tutto il percorso relativo all' acquisto tramite aste giudiziarie.
L' immobile viene venduto dal tribunale ed il prezzo indicato si riferisce all' offerta minima.
Contattaci per fissare un appuntamento per avere maggiori informazioni.
Per maggiori informazioni:
MILANO, VIA GIUSEPPE TARTINI, 12 (MI)
+39 3392588984
+39 3427176507

Per maggiori informazioni:
MILANO, VIA GIUSEPPE TARTINI, 12 (MI)
+39 3392588984
+39 3427176507
Caratteristiche principali
Codice
SGE59
Città
Seregno
Categoria
3 locali
Prezzo
169.250 €
Locali
3
Mq
101
Box
1
Piano
1
Classe energetica
G
Stato Immobile
Buono
Grado
Medio
Posizione
Periferia
Panorama
Vista Aperta
Orientamento
Nord Ovest Sud Est
Giardino
Cortile
Arredi
Semi Arredato
Tipo Soggiorno
Sala da Pranzo
Tipo Cucina
A Vista
Riscaldamento
Centralizzato
Tipo Riscaldam.
Caldaia
Tipo Impianto
Radiatori
Fonte Energetica
Metano
Infissi
Legno
Serramenti
Buono
Persiana
Tapparella PVC
Pavim. Giorno
Ceramica
Pavim. Notte
Ceramica
Pavim. Cucina
Ceramica
Pavim. Bagno
Ceramica

Accessori: Aria Condizionata, Ascensore, Porta Blindata

Mappa
Via Cadore 120, Seregno (MB)
Condividi su
Cookie preference