Italiano
234.500 €

TRILOCALE ALL'ASTA

3 locali in vendita • Lodi - Via Gaffurio, 36
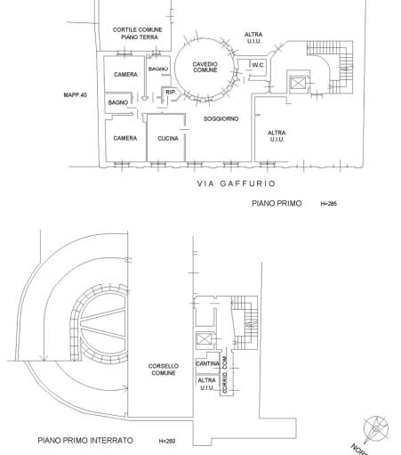
Appartamento posto al piano primo, composto da tre locali con tre servizi, cantina e box, della superficie commerciale di 133 mq, dotato di ascensore, riscaldamento centralizzato e aria condizionata
Appartamento posto al piano primo, composto da tre locali con tre servizi, cantina e box, della superficie commerciale di 133 mq, dotato di ascensore, riscaldamento centralizzato e aria condizionata
AFFARI ALL'ASTA è uno studio di consulenza che si occupa di aste immobiliari e saldo stralcio, dove il cliente viene seguito in tutto il percorso relativo all' acquisto tramite aste giudiziarie.
L' immobile viene venduto dal tribunale ed il prezzo indicato si riferisce all' offerta minima.
Contattaci per fissare un appuntamento per avere maggiori informazioni.
Per maggiori informazioni:
MILANO, VIA GIUSEPPE TARTINI, 12 (MI)
+39 3392588984
+39 3427176507

Per maggiori informazioni:
MILANO, VIA GIUSEPPE TARTINI, 12 (MI)
+39 3392588984
+39 3427176507

Caratteristiche principali
Codice
SGE306
Città
Lodi
Categoria
3 locali
Prezzo
234.500 €
Locali
3
Bagni
3
Mq
133
Box
1
Piano
1
Classe energetica
G
Stato Immobile
Buono
Grado
Medio
Posizione
Centro Storico
Panorama
Vista Aperta
Orientamento
Nord Ovest Sud Est
Giardino
Cortile
Arredi
Non Arredato
Tipo Soggiorno
Sala da Pranzo
Tipo Cucina
A Vista
Riscaldamento
Centralizzato
Tipo Riscaldam.
Caldaia
Tipo Impianto
Pavimento
Fonte Energetica
Metano
Infissi
Legno Doppio Vetro
Serramenti
Buono
Persiana
Persiana Legno
Pavim. Giorno
Ceramica
Pavim. Notte
Parquet
Pavim. Cucina
Ceramica
Pavim. Bagno
Ceramica

Accessori: Aria Condizionata, Ascensore, Porta Blindata, Video Citofono

Mappa
Via Gaffurio 36, Lodi (LO)
Condividi su
Cookie preference