Italiano
259.000 €

TRILOCALE ALL'ASTA

3 locali in vendita • Lodi - Via Gaffurio, 36
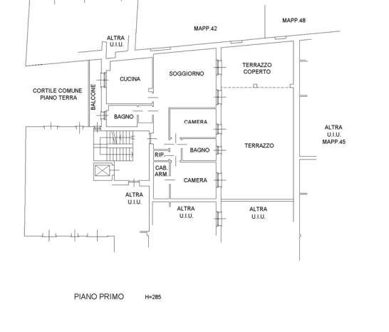
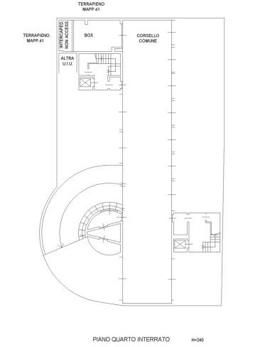
Appartamento sito in Lodi alla Via Gaffurio 36, posto al piano primo, composto da tre locali con cucina e doppi servizi, della superficie commerciale di 135 mq e box posto al piano quarto interrato.
Appartamento sito in Lodi alla Via Gaffurio 36, posto al piano primo, composto da tre locali con cucina e doppi servizi, della superficie commerciale di 135 mq e box posto al piano quarto interrato.
AFFARI ALL'ASTA è uno studio di consulenza che si occupa di aste immobiliari e saldo stralcio, dove il cliente viene seguito in tutto il percorso relativo all' acquisto tramite aste giudiziarie.
L' immobile viene venduto dal tribunale ed il prezzo indicato si riferisce all' offerta minima.
Contattaci per fissare un appuntamento per avere maggiori informazioni.
Per maggiori informazioni:
MILANO, VIA GIUSEPPE TARTINI, 12 (MI)
+39 3392588984
+39 3427176507

Per maggiori informazioni:
MILANO, VIA GIUSEPPE TARTINI, 12 (MI)
+39 3392588984
+39 3427176507
Caratteristiche principali
Codice
SGE300
Città
Lodi
Categoria
3 locali
Prezzo
259.000 €
Locali
3
Bagni
2
Mq
135
Box
1
Piano
1
Classe energetica
G
Stato Immobile
Buono
Grado
Medio
Posizione
Periferia
Panorama
Vista Aperta
Orientamento
Nord Ovest Sud Est
Giardino
Cortile
Arredi
Semi Arredato
Tipo Soggiorno
Sala da Pranzo
Tipo Cucina
A Vista
Riscaldamento
Centralizzato
Tipo Riscaldam.
Caldaia
Tipo Impianto
Pavimento
Fonte Energetica
Metano
Infissi
Legno Doppio Vetro
Serramenti
Buono
Persiana
Persiana Legno
Pavim. Giorno
Ceramica
Pavim. Notte
Parquet
Pavim. Cucina
Ceramica
Pavim. Bagno
Ceramica

Accessori: Aria Condizionata, Armadio a Muro, Ascensore, Porta Blindata, Ripostiglio

Mappa
Via Gaffurio 36, Lodi (LO)
Condividi su
Cookie preference