Italiano
80.250 €

TRILOCALE ALL'ASTA

3 locali in vendita • Limbiate - Via Filippo Turati, 69
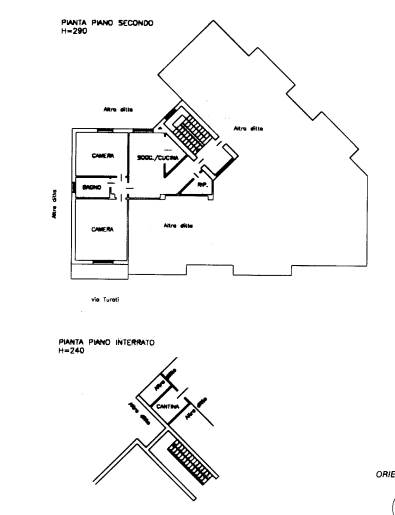
comune di limbiate (mi), via turati n. 69, appartamento ad uso abitazione, posto al piano secondo, composto da tre locali oltre servizi, con annesso vano cantina al piano interrato.
comune di limbiate (mi), via turati n. 69, appartamento ad uso abitazione, posto al piano secondo, composto da tre locali oltre servizi, con annesso vano cantina al piano interrato.
AFFARI ALL'ASTA è uno studio di consulenza che si occupa di aste immobiliari e saldo stralcio, dove il cliente viene seguito in tutto il percorso relativo all' acquisto tramite aste giudiziarie.
L' immobile viene venduto dal tribunale ed il prezzo indicato si riferisce all' offerta minima.
Contattaci per fissare un appuntamento per avere maggiori informazioni.
Per maggiori informazioni:
MILANO, VIA GIUSEPPE TARTINI, 12 (MI)
+39 3392588984
+39 3427176507

Per maggiori informazioni:
MILANO, VIA GIUSEPPE TARTINI, 12 (MI)
+39 3392588984
+39 3427176507
Caratteristiche principali
Codice
SGE297
Città
Limbiate
Categoria
3 locali
Prezzo
80.250 €
Locali
3
Bagni
1
Mq
80
Piano
2
Classe energetica
G
Stato Immobile
Buono
Grado
Medio
Posizione
Centro
Panorama
Vista Aperta
Orientamento
Nord Ovest Sud Est
Giardino
Cortile
Arredi
Semi Arredato
Tipo Soggiorno
Sala da Pranzo
Tipo Cucina
A Vista
Riscaldamento
Autonomo
Tipo Riscaldam.
Caldaia
Tipo Impianto
Radiatori
Fonte Energetica
Metano
Infissi
Alluminio
Serramenti
Buono
Persiana
Tapparella PVC
Pavim. Giorno
Ceramica
Pavim. Notte
Ceramica
Pavim. Cucina
Ceramica
Pavim. Bagno
Ceramica

Accessori: Aria Condizionata, Porta Blindata, Ripostiglio

Mappa
Via Filippo Turati 69, Limbiate (MB)
Condividi su
Cookie preference