Italiano
27.486 €

NEGOZIO ALL'ASTA

Negozio in vendita • Mercallo - Via MILANO, 620
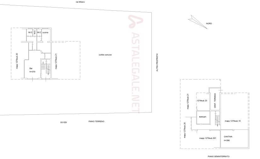
unità immobiliare a destinazione locale commerciale (bar) in piano terra con annessi ripostigli, locale centrale termica e cantina in piano interrato, della superficie commerciale di 104 mq
unità immobiliare a destinazione locale commerciale (bar) in piano terra con annessi ripostigli, locale centrale termica e cantina in piano interrato, della superficie commerciale di 104 mq
AFFARI ALL'ASTA è uno studio di consulenza che si occupa di aste immobiliari e saldo stralcio, dove il cliente viene seguito in tutto il percorso relativo all' acquisto tramite aste giudiziarie.
L' immobile viene venduto dal tribunale ed il prezzo indicato si riferisce all' offerta minima.
Contattaci per fissare un appuntamento per avere maggiori informazioni.
Per maggiori informazioni:
MILANO, VIA GIUSEPPE TARTINI, 12 (MI)
+39 3392588984
+39 3427176507

Per maggiori informazioni:
MILANO, VIA GIUSEPPE TARTINI, 12 (MI)
+39 3392588984
+39 3427176507
Caratteristiche principali
Codice
SGE289
Città
Mercallo
Categoria
Negozio
Prezzo
27.486 €
Locali
1
Bagni
2
Mq
104
Piano
Terra
Classe energetica
G
Stato Immobile
Buono
Grado
Medio
Posizione
Periferia
Panorama
Vista Aperta
Orientamento
Nord Ovest Sud Est
Arredi
Semi Arredato
Riscaldamento
Centralizzato
Tipo Riscaldam.
Caldaia
Tipo Impianto
Radiatori
Fonte Energetica
Metano
Infissi
Alluminio
Serramenti
Buono
Pavimento
Ceramica
Numero Vetrine
Una
Mappa
Via MILANO 620, Mercallo (VA)
Condividi su
Cookie preference