Italiano
63.000 €

BILOCALE ALL'ASTA

2 locali in vendita • Somma Lombardo - Via Briante, 60
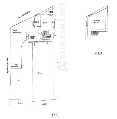
appartamento bilocale della superficie commerciale di mq. 62,80 circa posto al piano terra composto da cucina, disimpegno, bagno , camera, ampio ripostiglio al piano interrato e giardino
appartamento bilocale della superficie commerciale di mq. 62,80 circa posto al piano terra composto da cucina, disimpegno, bagno , camera, ampio ripostiglio al piano interrato e giardino
AFFARI ALL'ASTA è uno studio di consulenza che si occupa di aste immobiliari e saldo stralcio, dove il cliente viene seguito in tutto il percorso relativo all' acquisto tramite aste giudiziarie.
L' immobile viene venduto dal tribunale ed il prezzo indicato si riferisce all' offerta minima.
Contattaci per fissare un appuntamento per avere maggiori informazioni.
Per maggiori informazioni:
MILANO, VIA GIUSEPPE TARTINI, 12 (MI)
+39 3392588984
+39 3427176507

Per maggiori informazioni:
MILANO, VIA GIUSEPPE TARTINI, 12 (MI)
+39 3392588984
+39 3427176507
Caratteristiche principali
Codice
SGE284
Città
Somma Lombardo
Categoria
2 locali
Prezzo
63.000 €
Locali
2
Bagni
1
Mq
62
Piano
Terra
Classe energetica
G
Stato Immobile
Buono
Grado
Medio
Posizione
Centro
Panorama
Vista Aperta
Orientamento
Nord Ovest Sud Est
Giardino
Cortile
Arredi
Semi Arredato
Tipo Soggiorno
Sala da Pranzo
Tipo Cucina
A Vista
Riscaldamento
Centralizzato
Tipo Riscaldam.
Caldaia
Tipo Impianto
Radiatori
Fonte Energetica
Metano
Infissi
Legno
Serramenti
Buono
Persiana
Persiana Legno
Pavim. Giorno
Ceramica
Pavim. Notte
Ceramica
Pavim. Cucina
Ceramica
Pavim. Bagno
Ceramica

Accessori: Antifurto, Porta Blindata, Ripostiglio, Video Citofono

Mappa
Via Briante 60, Somma Lombardo (VA)
Condividi su
Cookie preference