Italiano
135.000 €

VILLA ALL'ASTA

4 o più locali in vendita • Cavaria con Premezzo - Via Giovanni Pascoli , 275
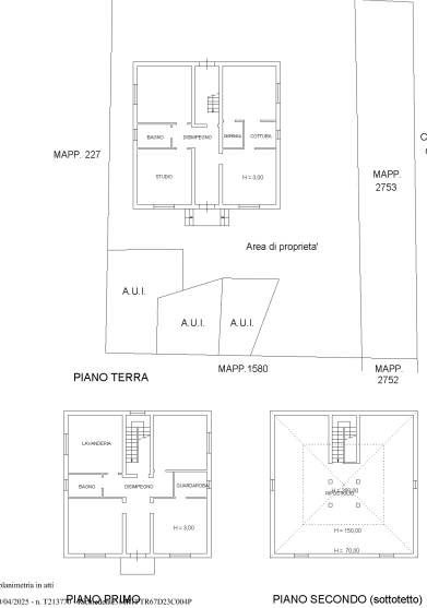
villa singola distribuita su due livelli collegati da scala interna, con due ingressi e con annessi accessori costituiti da n.3 box e area pertinenziale esclusiva. Composto da sei locali con cucina e 2 bagni
villa singola distribuita su due livelli collegati da scala interna, con due ingressi e con annessi accessori costituiti da n.3 box e area pertinenziale esclusiva. Composto da sei locali con cucina e 2 bagni
AFFARI ALL'ASTA è uno studio di consulenza che si occupa di aste immobiliari e saldo stralcio, dove il cliente viene seguito in tutto il percorso relativo all' acquisto tramite aste giudiziarie.
L' immobile viene venduto dal tribunale ed il prezzo indicato si riferisce all' offerta minima.
Contattaci per fissare un appuntamento per avere maggiori informazioni.
Per maggiori informazioni:
MILANO, VIA GIUSEPPE TARTINI, 12 (MI)
+39 3392588984
+39 3427176507

Per maggiori informazioni:
MILANO, VIA GIUSEPPE TARTINI, 12 (MI)
+39 3392588984
+39 3427176507
Caratteristiche principali
Codice
SGE267
Città
Cavaria con Premezzo
Categoria
4 o più locali
Prezzo
135.000 €
Locali
6
Bagni
2
Mq
257
Box
3
Classe energetica
G
Stato Immobile
Buono
Grado
Medio
Posizione
Periferia
Panorama
Vista Aperta
Orientamento
Nord Ovest Sud Est
Giardino
Cortile
Arredi
Semi Arredato
Tipo Soggiorno
Sala da Pranzo
Tipo Cucina
A Vista
Riscaldamento
Autonomo
Tipo Riscaldam.
Caldaia
Tipo Impianto
Radiatori
Fonte Energetica
Metano
Infissi
Legno
Serramenti
Buono
Persiana
Tapparella Legno
Pavim. Giorno
Ceramica
Pavim. Notte
Ceramica
Pavim. Cucina
Ceramica
Pavim. Bagno
Ceramica

Accessori: Stufa a Pellet

Mappa
Via Giovanni Pascoli 275, Cavaria con Premezzo (VA)
Condividi su
Cookie preference