Italiano
746.250 €

CINQUE LOCALI ALL'ASTA

4 o più locali in vendita • Pieve Emanuele - Cascina Tolcinasco, SNC
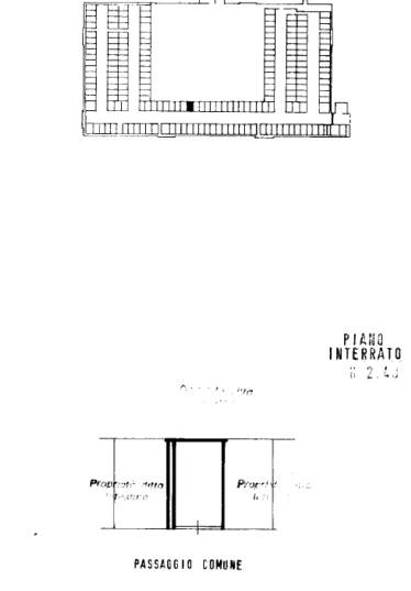
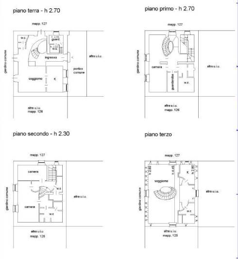
in pieve emanuele (mi) alla via cascina tolcinasco snc, appartamento su piu’ livelli (piani t/1/2/3) e 3 autorimesse al piano s1, della superficie commerciale di 320 mq
in pieve emanuele (mi) alla via cascina tolcinasco snc, appartamento su piu’ livelli (piani t/1/2/3) e 3 autorimesse al piano s1, della superficie commerciale di 320 mq
AFFARI ALL'ASTA è uno studio di consulenza che si occupa di aste immobiliari e saldo stralcio, dove il cliente viene seguito in tutto il percorso relativo all' acquisto tramite aste giudiziarie.
L' immobile viene venduto dal tribunale ed il prezzo indicato si riferisce all' offerta minima.
Contattaci per fissare un appuntamento per avere maggiori informazioni.
Per maggiori informazioni:
MILANO, VIA GIUSEPPE TARTINI, 12 (MI)
+39 3392588984
+39 3427176507

Per maggiori informazioni:
MILANO, VIA GIUSEPPE TARTINI, 12 (MI)
+39 3392588984
+39 3427176507

Caratteristiche principali
Codice
SGE259
Città
Pieve Emanuele
Categoria
4 o più locali
Prezzo
746.250 €
Locali
5
Bagni
6
Mq
320
Box
3
Piano
Terra
Classe energetica
G
Stato Immobile
Buono
Grado
Medio
Posizione
Periferia
Panorama
Vista Aperta
Orientamento
Nord Ovest Sud Est
Giardino
Cortile
Arredi
Semi Arredato
Tipo Soggiorno
Doppio
Tipo Cucina
A Vista
Riscaldamento
Centralizzato
Tipo Riscaldam.
Caldaia
Tipo Impianto
Pavimento
Fonte Energetica
Metano
Infissi
Legno
Serramenti
Buono
Persiana
Persiana Legno
Pavim. Giorno
Ceramica
Pavim. Notte
Ceramica
Pavim. Cucina
Ceramica
Pavim. Bagno
Ceramica

Accessori: Aria Condizionata, Camino, Porta Blindata, Video Citofono

Mappa
Cascina Tolcinasco SNC, Pieve Emanuele (MI)
Condividi su
Cookie preference