Italiano
130.500 €

TRILOCALE ALLASTA

3 locali in vendita • Senago - Via Londra, 36
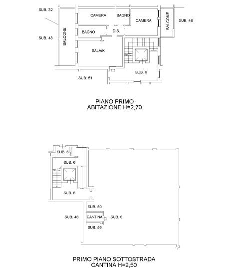
in comune di senago (mi), via londra n. 36: appartamento ad uso abitazione al piano primo di mq. commerciali 84, composto da tre locali, angolo cottura, servizi, due balconi, con annessa pertinenziale cantina al piano interrato
in comune di senago (mi), via londra n. 36: appartamento ad uso abitazione al piano primo di mq. commerciali 84, composto da tre locali, angolo cottura, servizi, due balconi, con annessa pertinenziale cantina al piano interrato
AFFARI ALL'ASTA è uno studio di consulenza che si occupa di aste immobiliari e saldo stralcio, dove il cliente viene seguito in tutto il percorso relativo all' acquisto tramite aste giudiziarie.
L' immobile viene venduto dal tribunale ed il prezzo indicato si riferisce all' offerta minima.
Contattaci per fissare un appuntamento per avere maggiori informazioni.
Per maggiori informazioni:
MILANO, VIA GIUSEPPE TARTINI, 12 (MI)
+39 3392588984
+39 3427176507

Per maggiori informazioni:
MILANO, VIA GIUSEPPE TARTINI, 12 (MI)
+39 3392588984
+39 3427176507
Caratteristiche principali
Codice
SGE254
Città
Senago
Categoria
3 locali
Prezzo
130.500 €
Locali
3
Mq
84
Piano
1
Classe energetica
G
Stato Immobile
Rustico
Grado
Medio
Posizione
Periferia
Panorama
Vista Aperta
Orientamento
Nord Ovest Sud Est
Giardino
Cortile
Arredi
Non Arredato
Tipo Soggiorno
Sala da Pranzo
Tipo Cucina
A Vista
Riscaldamento
Centralizzato
Tipo Riscaldam.
Caldaia
Tipo Impianto
Pavimento
Fonte Energetica
Metano
Infissi
PVC
Serramenti
Buono
Pavim. Giorno
Cemento
Pavim. Notte
Cemento
Pavim. Cucina
Cemento
Pavim. Bagno
Cemento

Accessori: Ascensore, Impianto Fotovoltaico, Porta Blindata, Video Citofono

Mappa
Via Londra 36, Senago (MI)
Condividi su
Cookie preference