Italiano
174.000 €

BILOCALE ALL'ASTA

2 locali in vendita • Senago - Via Londra, 36
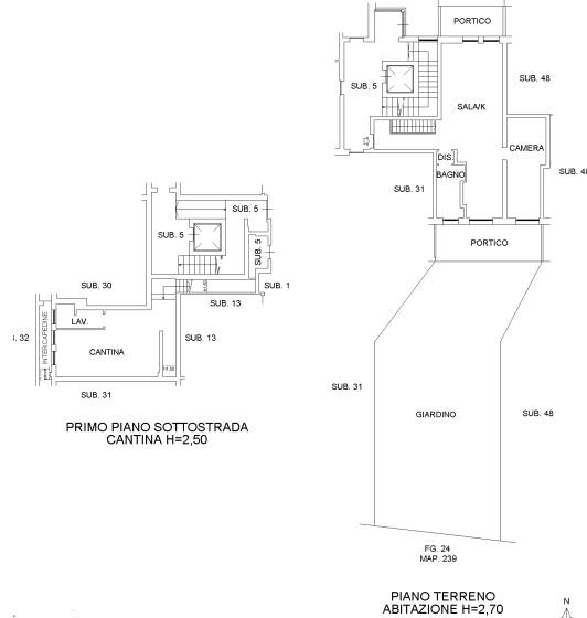
in comune di senago (mi), via londra n. 36: appartamento ad uso abitazione di mq. commerciali 111, composto, al piano terra, da due locali, angolo cottura, servizio, due portici e pertinenziali porzioni di giardino esclusivo, e da cantina e locale lavanderia al piano interrato collegato da scala interna al piano superiore.
AFFARI ALL'ASTA è uno studio di consulenza che si occupa di aste immobiliari e saldo stralcio, dove il cliente viene seguito in tutto il percorso relativo all' acquisto tramite aste giudiziarie.
L' immobile viene venduto dal tribunale ed il prezzo indicato si riferisce all' offerta minima.
Contattaci per fissare un appuntamento per avere maggiori informazioni.
Per maggiori informazioni:
MILANO, VIA GIUSEPPE TARTINI, 12 (MI)
+39 3392588984
+39 3427176507

Per maggiori informazioni:
MILANO, VIA GIUSEPPE TARTINI, 12 (MI)
+39 3392588984
+39 3427176507
Caratteristiche principali
Codice
SGE230
Città
Senago
Categoria
2 locali
Prezzo
174.000 €
Locali
2
Mq
111
Piano
Terra
Classe energetica
G
Stato Immobile
Rustico
Grado
Medio
Posizione
Periferia
Panorama
Vista Aperta
Orientamento
Nord Ovest Sud Est
Giardino
Privato
Arredi
Non Arredato
Tipo Soggiorno
Sala da Pranzo
Tipo Cucina
A Vista
Riscaldamento
Centralizzato
Tipo Impianto
Pavimento
Infissi
PVC Doppio Vetro
Serramenti
Buono
Pavim. Giorno
Cemento
Pavim. Notte
Cemento
Pavim. Cucina
Cemento
Pavim. Bagno
Cemento
Mappa
Via Londra 36, Senago (MI)
Condividi su
Cookie preference