Italiano
52.647 €

BILOCALE ALL'ASTA

2 locali in vendita • Cinisello Balsamo - Via F.lli Rosselli, 42
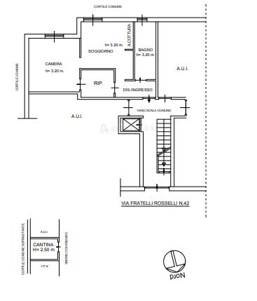
appartamento di mq. 51,00, piano terra, ingresso/disimpegno che collega il soggiorno con angolo cottura, bagno e camera da letto, cantina di pertinenza al piano interrato, posto auto scoperto a cinisello balsamo, via Fratelli Rosselli 42.
appartamento di mq. 51,00, piano terra, ingresso/disimpegno che collega il soggiorno con angolo cottura, bagno e camera da letto, cantina di pertinenza al piano interrato, posto auto scoperto a cinisello balsamo, via Fratelli Rosselli 42.
AFFARI ALL'ASTA è uno studio di consulenza che si occupa di aste immobiliari e saldo stralcio, dove il cliente viene seguito in tutto il percorso relativo all' acquisto tramite aste giudiziarie.
L' immobile viene venduto dal tribunale ed il prezzo indicato si riferisce all' offerta minima.
Contattaci per fissare un appuntamento per avere maggiori informazioni.
Per maggiori informazioni:
MILANO, VIA GIUSEPPE TARTINI, 12 (MI)
+39 3392588984
+39 3427176507

Per maggiori informazioni:
MILANO, VIA GIUSEPPE TARTINI, 12 (MI)
+39 3392588984
+39 3427176507
Caratteristiche principali
Codice
SGE221
Città
Cinisello Balsamo
Categoria
2 locali
Prezzo
52.647 €
Locali
2
Bagni
1
Mq
51
Posti auto
1
Piano
Terra
Classe energetica
G
Stato Immobile
Buono
Grado
Medio
Posizione
Centro
Panorama
Vista Aperta
Orientamento
Nord Ovest Sud Est
Giardino
Cortile
Arredi
Semi Arredato
Tipo Soggiorno
Sala da Pranzo
Tipo Cucina
A Vista
Riscaldamento
Centralizzato
Tipo Riscaldam.
Caldaia
Tipo Impianto
Radiatori
Fonte Energetica
Metano
Infissi
Alluminio
Serramenti
Buono
Persiana
Tapparella PVC
Pavim. Giorno
Ceramica
Pavim. Notte
Ceramica
Pavim. Cucina
Ceramica
Pavim. Bagno
Ceramica

Accessori: Ascensore, Porta Blindata

Mappa
Via F.lli Rosselli 42, Cinisello Balsamo (MI)
Condividi su
Cookie preference