Italiano
30.336 €

GARAGE ALL'ASTA

Garage in vendita • Milano (Garibaldi/ Isola/ Maciachini) - Via Carlo Imbonati, 62/2
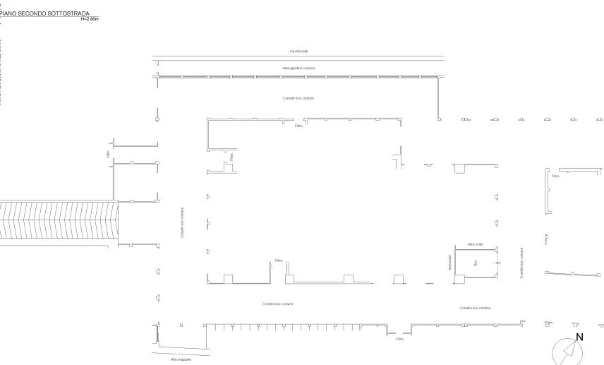
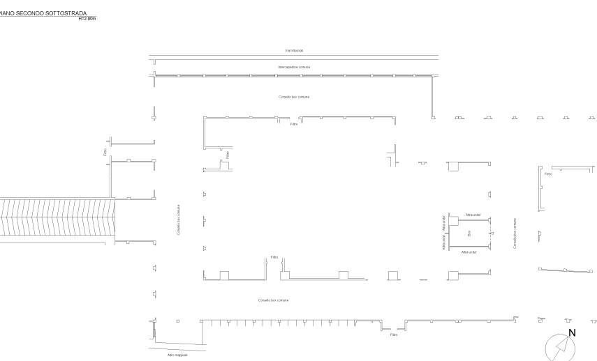
DUE BOXES SITI IN MILANO ALLA VIA CARLO IMBONATI 62/2, POSTI AL PIANO SECONDO INTERRATO, DELLA SUPERFICIE COMMERCIALE DI 17 MQ L'UNO E 18 MQ L'ALTRO. DOTATI ENTRAMBI DI SARACINESCA MANUALE E BASCULANTE
DUE BOXES SITI IN MILANO ALLA VIA CARLO IMBONATI 62/2, POSTI AL PIANO SECONDO INTERRATO, DELLA SUPERFICIE COMMERCIALE DI 17 MQ L'UNO E 18 MQ L'ALTRO. DOTATI ENTRAMBI DI SARACINESCA MANUALE E BASCULANTE
AFFARI ALL'ASTA è uno studio di consulenza che si occupa di aste immobiliari e saldo stralcio, dove il cliente viene seguito in tutto il percorso relativo all' acquisto tramite aste giudiziarie.
L' immobile viene venduto dal tribunale ed il prezzo indicato si riferisce all' offerta minima.
Contattaci per fissare un appuntamento per avere maggiori informazioni.
Per maggiori informazioni:
MILANO, VIA GIUSEPPE TARTINI, 12 (MI)
+39 3392588984
+39 3427176507

Per maggiori informazioni:
MILANO, VIA GIUSEPPE TARTINI, 12 (MI)
+39 3392588984
+39 3427176507
Caratteristiche principali
Codice
SGE218
Città
Milano (Garibaldi/ Isola/ Maciachini)
Categoria
Garage
Prezzo
30.336 €
Locali
2
Mq
35
Classe energetica
G
Stato Immobile
Buono
Grado
Medio
Posizione
Periferia
Pavimento
Cemento
Tipo Saracinesca
Manuale

Accessori: Ascensore

Mappa
Via Carlo Imbonati 62/2, Milano (MI)
Condividi su
Cookie preference