Italiano
127.500 €

TRILOCALE ALL'ASTA

3 locali in vendita • Viggiù - Vicolo Piatti, 9
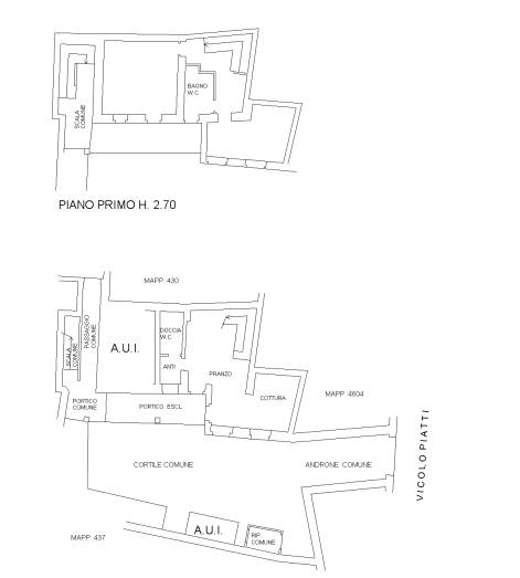
appartamento disposto su due piani composto al piano terra da portico esclusivo, soggiorno/pranzo, zona cottura, antibagno e bagno ed in corpo separato, nel cortile comune, piccolo ripostiglio comune, ed al piano primo da disimpegno, due camere, bagno e balcone, con annessa autorimessa al piano terreno.
AFFARI ALL'ASTA è uno studio di consulenza che si occupa di aste immobiliari e saldo stralcio, dove il cliente viene seguito in tutto il percorso relativo all' acquisto tramite aste giudiziarie.
L' immobile viene venduto dal tribunale ed il prezzo indicato si riferisce all' offerta minima.
Contattaci per fissare un appuntamento per avere maggiori informazioni.
Per maggiori informazioni:
MILANO, VIA GIUSEPPE TARTINI, 12 (MI)
+39 3392588984
+39 3427176507

Per maggiori informazioni:
MILANO, VIA GIUSEPPE TARTINI, 12 (MI)
+39 3392588984
+39 3427176507
Caratteristiche principali
Codice
SGE216
Città
Viggiù
Categoria
3 locali
Prezzo
127.500 €
Locali
3
Bagni
2
Mq
114
Box
1
Piano
Terra
Classe energetica
G
Stato Immobile
Buono
Grado
Medio
Posizione
Centro
Panorama
Vista Aperta
Orientamento
Nord Ovest Sud Est
Giardino
Cortile
Arredi
Semi Arredato
Tipo Soggiorno
Sala da Pranzo
Tipo Cucina
A Vista
Riscaldamento
Autonomo
Tipo Riscaldam.
Caldaia
Tipo Impianto
Pavimento
Fonte Energetica
Metano
Infissi
Legno
Serramenti
Buono
Persiana
Persiana Legno
Pavim. Giorno
Ceramica
Pavim. Notte
Ceramica
Pavim. Cucina
Ceramica
Pavim. Bagno
Ceramica
Mappa
Vicolo Piatti 9, Viggiù (VA)
Condividi su
Cookie preference