Italiano
35.400 €

BILOCALE ALL'ASTA

2 locali in vendita • Robecchetto con Induno - Via vincenzo monti, Snc
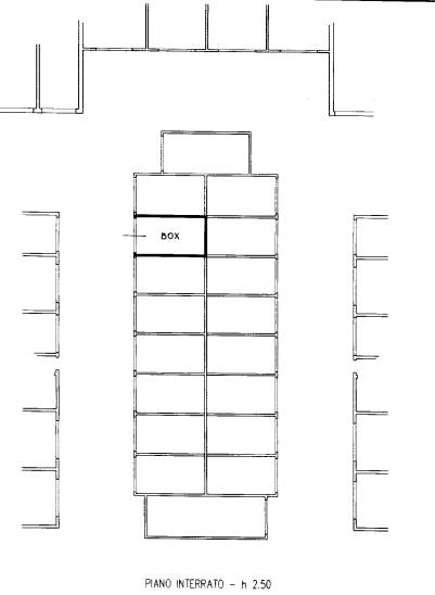
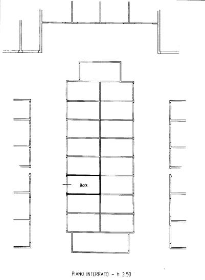
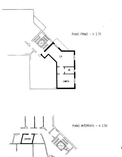
Appartamento ad uso civile abitazione posto al primo piano composto da ingresso, zona cucina-soggiorno, disimpegno, bagno, balcone e camera matrimoniale, oltre ad annessi e pertinenziali vano uso cantina e box autorimessa, ed ulteriore autorimessa singola posta al piano seminterrato.
Appartamento ad uso civile abitazione posto al primo piano composto da ingresso, zona cucina-soggiorno, disimpegno, bagno, balcone e camera matrimoniale, oltre ad annessi e pertinenziali vano uso cantina e box autorimessa, ed ulteriore autorimessa singola posta al piano seminterrato.
AFFARI ALL'ASTA è uno studio di consulenza che si occupa di aste immobiliari e saldo stralcio, dove il cliente viene seguito in tutto il percorso relativo all' acquisto tramite aste giudiziarie.
L' immobile viene venduto dal tribunale ed il prezzo indicato si riferisce all' offerta minima.
Contattaci per fissare un appuntamento per avere maggiori informazioni.
Per maggiori informazioni:
MILANO, VIA GIUSEPPE TARTINI, 12 (MI)
+39 3392588984
+39 3427176507

Per maggiori informazioni:
MILANO, VIA GIUSEPPE TARTINI, 12 (MI)
+39 3392588984
+39 3427176507
Caratteristiche principali
Codice
SGE2
Città
Robecchetto con Induno
Categoria
2 locali
Prezzo
35.400 €
Locali
2
Bagni
1
Mq
64
Box
2
Piano
1
Classe energetica
G
Stato Immobile
Buono
Grado
Medio
Posizione
Periferia
Panorama
Vista Aperta
Orientamento
Nord Ovest Sud Est
Giardino
Cortile
Arredi
Semi Arredato
Tipo Soggiorno
Sala da Pranzo
Tipo Cucina
A Vista
Riscaldamento
Autonomo
Tipo Riscaldam.
Caldaia
Tipo Impianto
Radiatori
Fonte Energetica
Metano
Infissi
Legno
Serramenti
Buono
Persiana
Tapparella PVC
Pavim. Giorno
Ceramica
Pavim. Notte
Ceramica
Pavim. Cucina
Ceramica
Pavim. Bagno
Ceramica

Accessori: Ascensore

Mappa
Via vincenzo monti Snc, Robecchetto con Induno (MI)
Condividi su
Cookie preference