Italiano
1.151.726 €

TRILOCALE ALL'ASTA

3 locali in vendita • Milano (Affori/ Bovisa/ Niguarda/ Testi) - Via dei Conti Biglia, 2
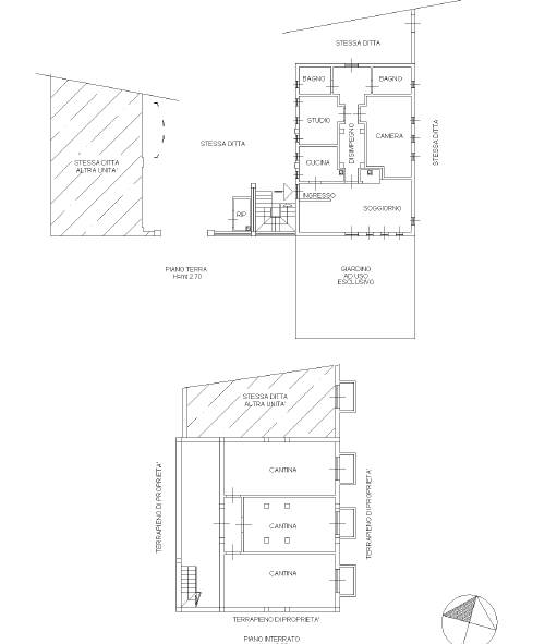
intera piena proprietà di cascinali ad uso abitazione al piano terra composto da soggiorno, cucina, studio, bagno, ripostiglio, a destra camera, bagno, con giardino ad uso esclusivo, al piano interrato n. 3 locali cantina, oltre a terreni agricoli.
intera piena proprietà di cascinali ad uso abitazione al piano terra composto da soggiorno, cucina, studio, bagno, ripostiglio, a destra camera, bagno, con giardino ad uso esclusivo, al piano interrato n. 3 locali cantina, oltre a terreni agricoli.
AFFARI ALL'ASTA è uno studio di consulenza che si occupa di aste immobiliari e saldo stralcio, dove il cliente viene seguito in tutto il percorso relativo all' acquisto tramite aste giudiziarie.
L' immobile viene venduto dal tribunale ed il prezzo indicato si riferisce all' offerta minima.
Contattaci per fissare un appuntamento per avere maggiori informazioni.
Per maggiori informazioni:
MILANO, VIA GIUSEPPE TARTINI, 12 (MI)
+39 3392588984
+39 3427176507

Per maggiori informazioni:
MILANO, VIA GIUSEPPE TARTINI, 12 (MI)
+39 3392588984
+39 3427176507
Caratteristiche principali
Codice
SGE198
Città
Milano (Affori/ Bovisa/ Niguarda/ Testi)
Categoria
3 locali
Prezzo
1.151.726 €
Locali
3
Bagni
1
Mq
116
Piano
Terra
Classe energetica
G
Stato Immobile
Buono
Grado
Medio
Posizione
Periferia
Panorama
Vista Aperta
Orientamento
Nord Ovest Sud Est
Giardino
Cortile
Arredi
Semi Arredato
Tipo Soggiorno
Sala da Pranzo
Tipo Cucina
A Vista
Riscaldamento
Centralizzato
Tipo Riscaldam.
Caldaia
Tipo Impianto
Radiatori
Fonte Energetica
Metano
Infissi
Legno Doppio Vetro
Serramenti
Buono
Persiana
Persiana Legno
Pavim. Giorno
Ceramica
Pavim. Notte
Ceramica
Pavim. Cucina
Ceramica
Pavim. Bagno
Ceramica

Accessori: Stufa a Pellet

Mappa
Via dei Conti Biglia 2, Milano (MI)
Condividi su
Cookie preference