Italiano
78.000 €

BILOCALE ALL'ASTA

2 locali in vendita • Cabiate - Via Monte Grappa , 3
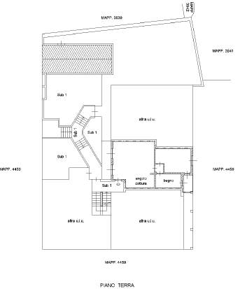
appartamento al piano terra della superficie di mq. 872, composto da soggiorno con angolo cottura, disimpegno, camera, bagno, due balconi e annessi box auto e cantina.
appartamento al piano terra della superficie di mq. 872, composto da soggiorno con angolo cottura, disimpegno, camera, bagno, due balconi e annessi box auto e cantina.
AFFARI ALL'ASTA è uno studio di consulenza che si occupa di aste immobiliari e saldo stralcio, dove il cliente viene seguito in tutto il percorso relativo all' acquisto tramite aste giudiziarie.
L' immobile viene venduto dal tribunale ed il prezzo indicato si riferisce all' offerta minima.
Contattaci per fissare un appuntamento per avere maggiori informazioni.
Per maggiori informazioni:
MILANO, VIA GIUSEPPE TARTINI, 12 (MI)
+39 3392588984
+39 3427176507

Per maggiori informazioni:
MILANO, VIA GIUSEPPE TARTINI, 12 (MI)
+39 3392588984
+39 3427176507
Caratteristiche principali
Codice
SGE187
Città
Cabiate
Categoria
2 locali
Prezzo
78.000 €
Locali
2
Bagni
1
Mq
82
Piano
Terra
Classe energetica
G
Stato Immobile
Buono
Grado
Medio
Posizione
Periferia
Panorama
Vista Aperta
Orientamento
Nord Ovest Sud Est
Giardino
Privato
Arredi
Semi Arredato
Tipo Soggiorno
Sala da Pranzo
Tipo Cucina
A Vista
Riscaldamento
Autonomo
Tipo Riscaldam.
Caldaia
Tipo Impianto
Radiatori
Fonte Energetica
Metano
Infissi
Legno
Serramenti
Buono
Persiana
Persiana Legno
Pavim. Giorno
Ceramica
Pavim. Notte
Parquet
Pavim. Cucina
Ceramica
Pavim. Bagno
Ceramica
Mappa
Via Monte Grappa 3, Cabiate (CO)
Condividi su
Cookie preference