Italiano
78.275 €

BILOCALE ALL'ASRA

2 locali in vendita • Pozzo d'Adda - Cascina Cavallasco, SNC
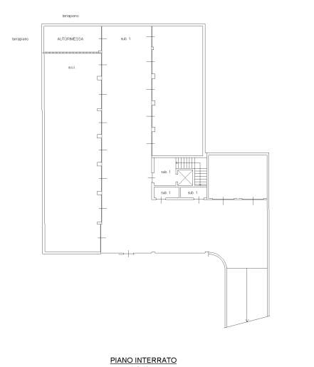
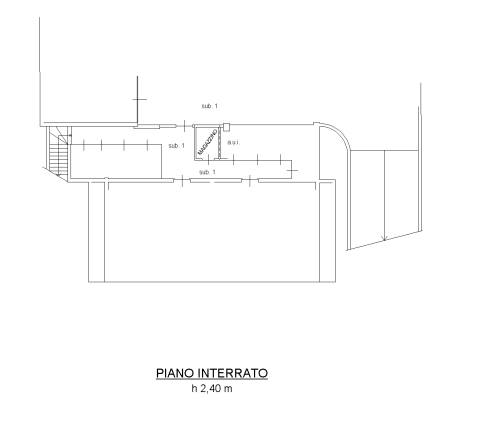
appartamento composto da due locali con angolo cottura oltre servizio e giardino al piano terra, con annesso vano di cantina al piano interrato, oltre a pertinenziale box ad uso autorimessa al piano interrato
appartamento composto da due locali con angolo cottura oltre servizio e giardino al piano terra, con annesso vano di cantina al piano interrato, oltre a pertinenziale box ad uso autorimessa al piano interrato
AFFARI ALL'ASTA è uno studio di consulenza che si occupa di aste immobiliari e saldo stralcio, dove il cliente viene seguito in tutto il percorso relativo all' acquisto tramite aste giudiziarie.
L' immobile viene venduto dal tribunale ed il prezzo indicato si riferisce all' offerta minima.
Contattaci per fissare un appuntamento per avere maggiori informazioni.
Per maggiori informazioni:
MILANO, VIA GIUSEPPE TARTINI, 12 (MI)
+39 3392588984
+39 3427176507

Per maggiori informazioni:
MILANO, VIA GIUSEPPE TARTINI, 12 (MI)
+39 3392588984
+39 3427176507
Caratteristiche principali
Codice
SGE176
Città
Pozzo d'Adda
Categoria
2 locali
Prezzo
78.275 €
Locali
2
Mq
60
Box
1
Piano
Terra
Classe energetica
G
Stato Immobile
Buono
Grado
Medio
Posizione
Periferia
Panorama
Vista Aperta
Orientamento
Nord Ovest Sud Est
Giardino
Cortile
Arredi
Non Arredato
Tipo Soggiorno
Sala da Pranzo
Tipo Cucina
A Vista
Riscaldamento
Autonomo
Tipo Riscaldam.
Caldaia
Tipo Impianto
Radiatori
Fonte Energetica
Metano
Infissi
Legno Doppio Vetro
Serramenti
Buono
Persiana
Tapparella PVC
Pavim. Giorno
Ceramica
Pavim. Notte
Ceramica
Pavim. Cucina
Ceramica
Pavim. Bagno
Ceramica

Accessori: Ascensore, Porta Blindata

Mappa
Cascina Cavallasco SNC, Pozzo d'Adda (MI)
Condividi su
Cookie preference