Italiano
240.000 €

TRILOCALE ALL'ASTA

3 locali in vendita • Magenta - Via Goito, 11
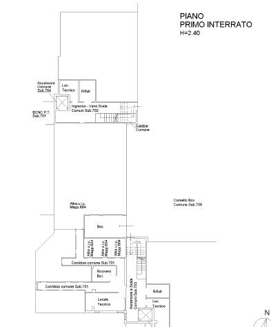
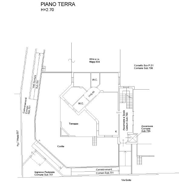
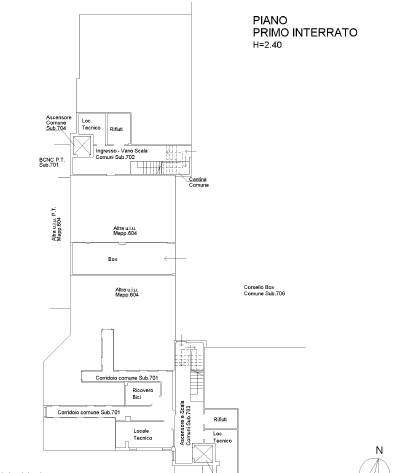
in comune di magenta (mi), nel fabbricato condominiale denominato “condominio elena”, avente ingresso pedonale e carraio da via goito n. 11 e ingresso pedonale secondario da via milano n. 184:-appartamento ad uso abitazione posto al piano terreno con annessi area cortilizia pertinenziale esclusiva, pertinenziali cantina e due box ad uso autorimessa privata al piano seminterrato.
AFFARI ALL'ASTA è uno studio di consulenza che si occupa di aste immobiliari e saldo stralcio, dove il cliente viene seguito in tutto il percorso relativo all' acquisto tramite aste giudiziarie.
L' immobile viene venduto dal tribunale ed il prezzo indicato si riferisce all' offerta minima.
Contattaci per fissare un appuntamento per avere maggiori informazioni.
Per maggiori informazioni:
MILANO, VIA GIUSEPPE TARTINI, 12 (MI)
+39 3392588984
+39 3427176507

Per maggiori informazioni:
MILANO, VIA GIUSEPPE TARTINI, 12 (MI)
+39 3392588984
+39 3427176507
Caratteristiche principali
Codice
SGE174
Città
Magenta
Categoria
3 locali
Prezzo
240.000 €
Locali
3
Mq
127
Box
2
Piano
Terra
Classe energetica
G
Stato Immobile
Buono
Grado
Medio
Posizione
Periferia
Panorama
Vista Aperta
Orientamento
Nord Ovest Sud Est
Giardino
Privato
Arredi
Semi Arredato
Tipo Soggiorno
Sala da Pranzo
Tipo Cucina
A Vista
Riscaldamento
Centralizzato
Tipo Riscaldam.
Caldaia
Tipo Impianto
Radiatori
Fonte Energetica
Metano
Infissi
PVC Doppio Vetro
Serramenti
Buono
Persiana
Tapparella PVC
Pavim. Giorno
Gres Porcellanato
Pavim. Notte
Gres Porcellanato
Pavim. Cucina
Gres Porcellanato
Pavim. Bagno
Ceramica

Accessori: Aria Condizionata, Ascensore, Porta Blindata

Mappa
Via Goito 11, Magenta (MI)
Condividi su
Cookie preference