Italiano
194.625 €

QUADRILOCALE ALL'ASTA

4 o più locali in vendita • Gessate - Via Antonio Gramsci, 10
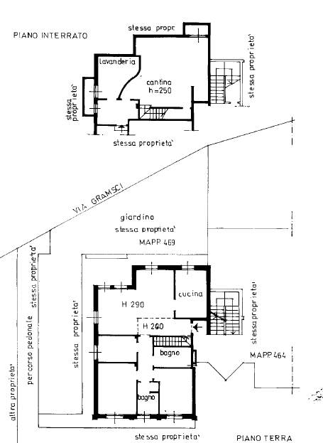
piena proprietà di appartamento ad uso abitazione posto al piano terra e seminterrato composto al piano terra da quattro locali, cucina, disimpegno, doppi servizi con annesso giardino esclusivo, ampio vano cantina con intercapedine al piano seminterrato collegati da scala interna, e con box al piano seminterrato anche esso collegato all’appartamento.
AFFARI ALL'ASTA è uno studio di consulenza che si occupa di aste immobiliari e saldo stralcio, dove il cliente viene seguito in tutto il percorso relativo all' acquisto tramite aste giudiziarie.
L' immobile viene venduto dal tribunale ed il prezzo indicato si riferisce all' offerta minima.
Contattaci per fissare un appuntamento per avere maggiori informazioni.
Per maggiori informazioni:
MILANO, VIA GIUSEPPE TARTINI, 12 (MI)
+39 3392588984
+39 3427176507

Per maggiori informazioni:
MILANO, VIA GIUSEPPE TARTINI, 12 (MI)
+39 3392588984
+39 3427176507
Caratteristiche principali
Codice
SGE17
Città
Gessate
Categoria
4 o più locali
Prezzo
194.625 €
Locali
4
Bagni
2
Mq
159
Box
1
Piano
Terra
Classe energetica
G
Stato Immobile
Buono
Grado
Medio
Posizione
Centro
Panorama
Vista Aperta
Orientamento
Nord Ovest Sud Est
Giardino
Privato
Arredi
Semi Arredato
Tipo Soggiorno
Sala da Pranzo
Tipo Cucina
A Vista
Riscaldamento
Autonomo
Tipo Riscaldam.
Caldaia
Tipo Impianto
Radiatori
Fonte Energetica
Metano
Infissi
Legno
Serramenti
Buono
Persiana
Persiana Legno
Pavim. Giorno
Ceramica
Pavim. Notte
Ceramica
Pavim. Cucina
Ceramica
Pavim. Bagno
Ceramica

Accessori: Aria Condizionata, Lavanderia, Porta Blindata, Zanzariere

Mappa
Via Antonio Gramsci 10, Gessate (MI)
Condividi su
Cookie preference