Italiano
248.063 €

VILLA ALL'ASTA

4 o più locali in vendita • Mezzago - Via dell'Acqua, 11
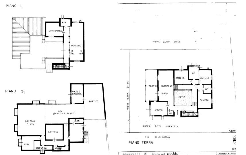
villa singola a mezzago via dell'acqua 11,di 316 mq, 1/1 di piena proprietà. disposta su 3 livelli: s1: cantina, lavanderia, dispensa, locali tecnologici e box; pt: soggiorno, cucina, 3 camere, 2 bagni.
villa singola a mezzago via dell'acqua 11,di 316 mq, 1/1 di piena proprietà. disposta su 3 livelli: s1: cantina, lavanderia, dispensa, locali tecnologici e box; pt: soggiorno, cucina, 3 camere, 2 bagni.
AFFARI ALL'ASTA è uno studio di consulenza che si occupa di aste immobiliari e saldo stralcio, dove il cliente viene seguito in tutto il percorso relativo all' acquisto tramite aste giudiziarie.
L' immobile viene venduto dal tribunale ed il prezzo indicato si riferisce all' offerta minima.
Contattaci per fissare un appuntamento per avere maggiori informazioni.
Per maggiori informazioni:
MILANO, VIA GIUSEPPE TARTINI, 12 (MI)
+39 3392588984
+39 3427176507

Per maggiori informazioni:
MILANO, VIA GIUSEPPE TARTINI, 12 (MI)
+39 3392588984
+39 3427176507
Caratteristiche principali
Codice
SGE135
Città
Mezzago
Categoria
4 o più locali
Prezzo
248.063 €
Locali
4
Bagni
2
Mq
316
Box
1
Piano
Terra
Classe energetica
G
Stato Immobile
Buono
Grado
Medio
Posizione
Periferia
Panorama
Vista Aperta
Orientamento
Nord Ovest Sud Est
Giardino
Privato
Arredi
Semi Arredato
Tipo Soggiorno
Sala da Pranzo
Tipo Cucina
A Vista
Riscaldamento
Autonomo
Tipo Riscaldam.
Caldaia
Tipo Impianto
Radiatori
Fonte Energetica
Metano
Infissi
Legno Doppio Vetro
Serramenti
Buono
Persiana
Persiana Legno
Pavim. Giorno
Ceramica
Pavim. Notte
Parquet
Pavim. Cucina
Ceramica
Pavim. Bagno
Ceramica

Accessori: Lavanderia, Ripostiglio

Mappa
Via dell'Acqua 11, Mezzago (MB)
Condividi su
Cookie preference