Italiano
62.310 €

BILOCALE ALL'ASTA

2 locali in vendita • Vigevano - Corso PAVIA, 78/80
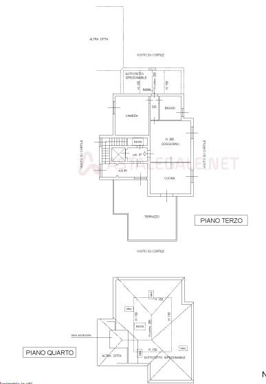
appartamento e garage presso il complesso residenziale denominato residenza le acacie. l’appartamento è posto al piano terzo con annesso sottotetto al piano quarto e si compone di ingresso, soggiorno, cucina, bagno, disimpegno, camera, terrazzo e garage
appartamento e garage presso il complesso residenziale denominato residenza le acacie. l’appartamento è posto al piano terzo con annesso sottotetto al piano quarto e si compone di ingresso, soggiorno, cucina, bagno, disimpegno, camera, terrazzo e garage
AFFARI ALL'ASTA è uno studio di consulenza che si occupa di aste immobiliari e saldo stralcio, dove il cliente viene seguito in tutto il percorso relativo all' acquisto tramite aste giudiziarie.
L' immobile viene venduto dal tribunale ed il prezzo indicato si riferisce all' offerta minima.
Contattaci per fissare un appuntamento per avere maggiori informazioni.
Per maggiori informazioni:
MILANO, VIA GIUSEPPE TARTINI, 12 (MI)
+39 3392588984
+39 3427176507

Per maggiori informazioni:
MILANO, VIA GIUSEPPE TARTINI, 12 (MI)
+39 3392588984
+39 3427176507
Caratteristiche principali
Codice
SGE128
Città
Vigevano
Categoria
2 locali
Prezzo
62.310 €
Locali
2
Bagni
1
Mq
99
Box
1
Piano
3
Classe energetica
G
Stato Immobile
Buono
Grado
Medio
Posizione
Periferia
Panorama
Vista Aperta
Orientamento
Nord Ovest Sud Est
Giardino
Cortile
Arredi
Non Arredato
Tipo Soggiorno
Sala da Pranzo
Tipo Cucina
A Vista
Riscaldamento
Autonomo
Tipo Riscaldam.
Caldaia
Tipo Impianto
Pavimento
Fonte Energetica
Metano
Infissi
Legno Doppio Vetro
Serramenti
Buono
Persiana
Tapparella PVC
Pavim. Giorno
Ceramica
Pavim. Notte
Ceramica
Pavim. Cucina
Ceramica
Pavim. Bagno
Ceramica

Accessori: Ascensore, Porta Blindata

Mappa
Corso PAVIA 78/80, Vigevano (PV)
Condividi su
Cookie preference