Italiano
141.800 €

VILLA A SCHIERA ALL'ASTA

4 o più locali in vendita • Siziano - Via Fratelli Cervi, 13
immobile in siziano (pv) – via fratelli cervi n. 13.
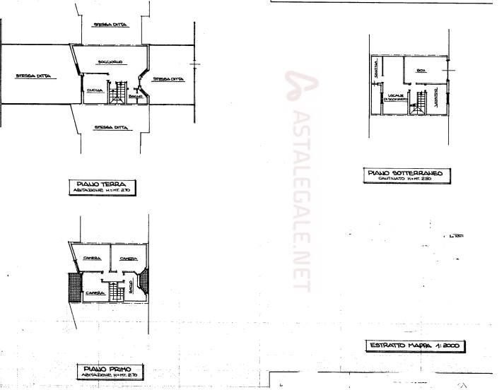
composto da: abitazione in villino con annessa cantina, giardino e box.
villetta a schiera su due piani oltre cantina e box al piano interrato
l’immobile di cui fa parte l’appartamento è un edificio residenziale a schiera, che si sviluppa in due livelli fuori terra e un piano seminterrato.
composizione interna: piano terra: ingresso con soggiorno, cucina, bagno; piano primo: tre camere di cui una con balcone e un bagno; piano seminterrato: cantina.
la cantina al piano interrato annessa all’appartamento è dotata di pavimentazione in piastrelle e pareti intonacate e tinteggiata in parte rivestite in perlinato, il box presenta pavimentazione in piastrelle e pareti intonacate e tinteggiate.
AFFARI ALL'ASTA è uno studio di consulenza che si occupa di aste immobiliari e saldo stralcio, dove il cliente viene seguito in tutto il percorso relativo all' acquisto tramite aste giudiziarie.
L' immobile viene venduto dal tribunale ed il prezzo indicato si riferisce all' offerta minima.
Contattaci per fissare un appuntamento per avere maggiori informazioni.
Per maggiori informazioni:
MILANO, VIA GIUSEPPE TARTINI, 12 (MI)
+39 3392588984
+39 3427176507

Per maggiori informazioni:
MILANO, VIA GIUSEPPE TARTINI, 12 (MI)
+39 3392588984
+39 3427176507
Caratteristiche principali
Codice
SGE101
Città
Siziano
Categoria
4 o più locali
Prezzo
141.800 €
Locali
4
Bagni
2
Mq
130
Box
1
Piano
Terra
Classe energetica
G
Stato Immobile
Buono
Grado
Medio
Posizione
Centro
Panorama
Vista Aperta
Orientamento
Nord Ovest Sud Est
Giardino
Privato
Arredi
Semi Arredato
Tipo Soggiorno
Sala da Pranzo
Tipo Cucina
A Vista
Riscaldamento
Autonomo
Tipo Riscaldam.
Caldaia
Tipo Impianto
Radiatori
Fonte Energetica
Metano
Infissi
Alluminio
Serramenti
Buono
Persiana
Tapparella PVC
Pavim. Giorno
Ceramica
Pavim. Notte
Ceramica
Pavim. Cucina
Ceramica
Pavim. Bagno
Ceramica

Accessori: Aria Condizionata, Zanzariere

Mappa
Via Fratelli Cervi 13, Siziano (PV)
Condividi su
Cookie preference