Italiano
177.000 €

TRILOCALE ALL'ASTA

3 locali in vendita • Pioltello - via Massimo D'Antona , 1/3
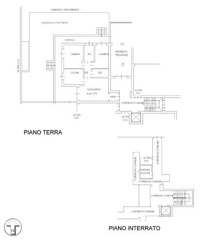
appartamento posto al piano terra composto da tre locali, cucina abitabile, doppi servizi, portico e giardino di proprietà; con annessi cantina al piano interrato e box di autorimessa al piano interrato. Dotato di riscaldamento termoautonomo, aria condizionata, inferriate
appartamento posto al piano terra composto da tre locali, cucina abitabile, doppi servizi, portico e giardino di proprietà; con annessi cantina al piano interrato e box di autorimessa al piano interrato. Dotato di riscaldamento termoautonomo, aria condizionata, inferriate
AFFARI ALL'ASTA è uno studio di consulenza che si occupa di aste immobiliari e saldo stralcio, dove il cliente viene seguito in tutto il percorso relativo all' acquisto tramite aste giudiziarie.
L' immobile viene venduto dal tribunale ed il prezzo indicato si riferisce all' offerta minima.
Contattaci per fissare un appuntamento per avere maggiori informazioni.
Per maggiori informazioni:
MILANO, VIA GIUSEPPE TARTINI, 12 (MI)
+39 3392588984
+39 3427176507

Per maggiori informazioni:
MILANO, VIA GIUSEPPE TARTINI, 12 (MI)
+39 3392588984
+39 3427176507

Caratteristiche principali
Codice
SGE1
Città
Pioltello
Categoria
3 locali
Prezzo
177.000 €
Locali
3
Bagni
2
Mq
101
Box
1
Piano
Terra
Classe energetica
G
Stato Immobile
Buono
Grado
Medio
Posizione
Periferia
Panorama
Vista Aperta
Orientamento
Nord Ovest Sud Est
Giardino
Privato
Arredi
Semi Arredato
Tipo Soggiorno
Sala da Pranzo
Tipo Cucina
A Vista
Riscaldamento
Autonomo
Tipo Riscaldam.
Caldaia
Tipo Impianto
Radiatori
Fonte Energetica
Metano
Infissi
Legno Doppio Vetro
Serramenti
Buono
Persiana
Tapparella PVC
Pavim. Giorno
Ceramica
Pavim. Notte
Ceramica
Pavim. Cucina
Ceramica
Pavim. Bagno
Ceramica

Accessori: Aria Condizionata, Ascensore, Porta Blindata

Mappa
via Massimo D'Antona 1/3, Pioltello (MI)
Condividi su
Cookie preference