Italiano
47.250 €

TRILOCALE ALL'ASTA

3 locali in vendita • Codogno - Via SAN BIAGIO, 1
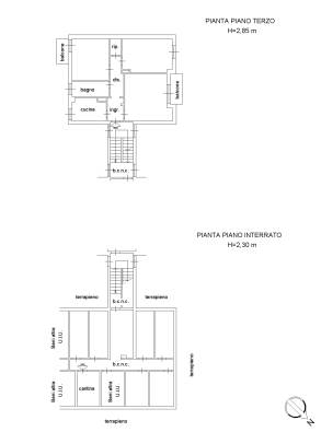
quota intera relativamente ad unità immobiliare composta da tre locali con servizi e cantina, ubicata al piano terzo, posta all’interno del villaggio san biagio, sito in codogno (lo), viale san biagio 1
quota intera relativamente ad unità immobiliare composta da tre locali con servizi e cantina, ubicata al piano terzo, posta all’interno del villaggio san biagio, sito in codogno (lo), viale san biagio 1
AFFARI ALL'ASTA è uno studio di consulenza che si occupa di aste immobiliari e saldo stralcio, dove il cliente viene seguito in tutto il percorso relativo all' acquisto tramite aste giudiziarie.
L' immobile viene venduto dal tribunale ed il prezzo indicato si riferisce all' offerta minima.
Contattaci per fissare un appuntamento per avere maggiori informazioni.
Per maggiori informazioni:
MILANO, VIA GIUSEPPE TARTINI, 12 (MI)
+39 3392588984
+39 3427176507

Per maggiori informazioni:
MILANO, VIA GIUSEPPE TARTINI, 12 (MI)
+39 3392588984
+39 3427176507
Caratteristiche principali
Codice
SFE82
Città
Codogno
Categoria
3 locali
Prezzo
47.250 €
Locali
3
Bagni
1
Mq
92
Piano
3
Classe energetica
G
Stato Immobile
Buono
Grado
Medio
Posizione
Periferia
Panorama
Vista Aperta
Orientamento
Nord Ovest Sud Est
Giardino
Cortile
Arredi
Semi Arredato
Tipo Soggiorno
Sala da Pranzo
Tipo Cucina
A Vista
Riscaldamento
Autonomo
Tipo Riscaldam.
Caldaia
Tipo Impianto
Radiatori
Fonte Energetica
Metano
Infissi
Legno
Serramenti
Buono
Persiana
Tapparella Legno
Pavim. Giorno
Marmette
Pavim. Notte
Marmette
Pavim. Cucina
Marmette
Pavim. Bagno
Ceramica

Accessori: Ripostiglio

Mappa
Via SAN BIAGIO 1, Codogno (LO)
Condividi su
Cookie preference