Italiano
109.500 €

UFFICIO ALL'ASTA

Ufficio in vendita • Brugherio - Via TRE RE, 9-11-13-1
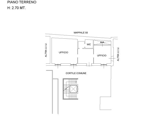
ufficio di mq 94,90 al piano terra con ingresso da cortile comune, composto da tre vani oltre servizi. oltre a posto auto coperto al piano s1 con accesso carraio da via ghirlandaia 19
ufficio di mq 94,90 al piano terra con ingresso da cortile comune, composto da tre vani oltre servizi. oltre a posto auto coperto al piano s1 con accesso carraio da via ghirlandaia 19
AFFARI ALL'ASTA è uno studio di consulenza che si occupa di aste immobiliari e saldo stralcio, dove il cliente viene seguito in tutto il percorso relativo all' acquisto tramite aste giudiziarie.
L' immobile viene venduto dal tribunale ed il prezzo indicato si riferisce all' offerta minima.
Contattaci per fissare un appuntamento per avere maggiori informazioni.
Per maggiori informazioni:
MILANO, VIA GIUSEPPE TARTINI, 12 (MI)
+39 3392588984
+39 3427176507

Per maggiori informazioni:
MILANO, VIA GIUSEPPE TARTINI, 12 (MI)
+39 3392588984
+39 3427176507
Caratteristiche principali
Codice
SFE64
Città
Brugherio
Categoria
Ufficio
Prezzo
109.500 €
Locali
3
Bagni
1
Mq
94
Posti auto
1
Piano
Terra
Classe energetica
G
Stato Immobile
Buono
Grado
Medio
Posizione
Centro Storico
Panorama
Vista Aperta
Orientamento
Nord Ovest Sud Est
Arredi
Semi Arredato
Riscaldamento
Centralizzato
Tipo Riscaldam.
Caldaia
Tipo Impianto
Pavimento
Fonte Energetica
Metano
Infissi
Alluminio
Serramenti
Ottimo
Pavimento
Ceramica

Accessori: Aria Condizionata, Porta Blindata, Ripostiglio, Video Citofono

Mappa
Via TRE RE 9-11-13-1, Brugherio (MB)
Condividi su
Cookie preference