Italiano
186.000 €

NEGOZIO ALL'ASTA

Negozio in vendita • Brugherio - Via TRE RE , 9-11-13-15
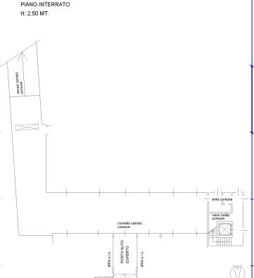
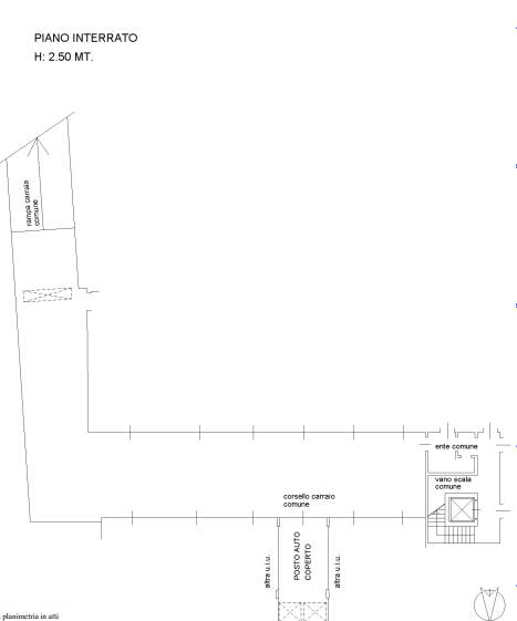
negozio della sup. commerciale di mq 181 posto al piano terra oltre n. 2 posti auto coperti al piano s1 con accesso carraio da via ghirlandaia 19, composto da cinque locali con servizi
negozio della sup. commerciale di mq 181 posto al piano terra oltre n. 2 posti auto coperti al piano s1 con accesso carraio da via ghirlandaia 19, composto da cinque locali con servizi
AFFARI ALL'ASTA è uno studio di consulenza che si occupa di aste immobiliari e saldo stralcio, dove il cliente viene seguito in tutto il percorso relativo all' acquisto tramite aste giudiziarie.
L' immobile viene venduto dal tribunale ed il prezzo indicato si riferisce all' offerta minima.
Contattaci per fissare un appuntamento per avere maggiori informazioni.
Per maggiori informazioni:
MILANO, VIA GIUSEPPE TARTINI, 12 (MI)
+39 3392588984
+39 3427176507

Per maggiori informazioni:
MILANO, VIA GIUSEPPE TARTINI, 12 (MI)
+39 3392588984
+39 3427176507
Caratteristiche principali
Codice
SFE63
Città
Brugherio
Categoria
Negozio
Prezzo
186.000 €
Locali
5
Bagni
1
Mq
181
Posti auto
2
Piano
Terra
Classe energetica
G
Stato Immobile
Buono
Grado
Medio
Posizione
Centro Storico
Panorama
Vista Aperta
Orientamento
Nord Ovest Sud Est
Arredi
Semi Arredato
Riscaldamento
Autonomo
Tipo Riscaldam.
Caldaia
Tipo Impianto
Radiatori
Fonte Energetica
Metano
Infissi
Alluminio Doppio Vetro
Serramenti
Buono
Persiana
Tapparella PVC
Pavimento
Ceramica
Numero Vetrine
Due

Accessori: Antifurto, Aria Condizionata, Porta Blindata

Mappa
Via TRE RE 9-11-13-15, Brugherio (MB)
Condividi su
Cookie preference