Italiano
38.813 €

TRILOCALE ALL'ASTA

3 locali in vendita • Vigevano - Via della Gioia, 73
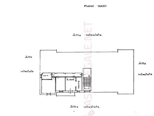
appartamento posto al piano quarto di un fabbricato di civile abitazione di cinque piani fuori terra, con accesso da strada laterale a via della gioia e autorimessa posta al piano terra, con accesso carraio da via della gioia e dal cortile comune
appartamento posto al piano quarto di un fabbricato di civile abitazione di cinque piani fuori terra, con accesso da strada laterale a via della gioia e autorimessa posta al piano terra, con accesso carraio da via della gioia e dal cortile comune
AFFARI ALL'ASTA è uno studio di consulenza che si occupa di aste immobiliari e saldo stralcio, dove il cliente viene seguito in tutto il percorso relativo all' acquisto tramite aste giudiziarie.
L' immobile viene venduto dal tribunale ed il prezzo indicato si riferisce all' offerta minima.
Contattaci per fissare un appuntamento per avere maggiori informazioni.
Per maggiori informazioni:
MILANO, VIA GIUSEPPE TARTINI, 12 (MI)
+39 3392588984
+39 3427176507

Per maggiori informazioni:
MILANO, VIA GIUSEPPE TARTINI, 12 (MI)
+39 3392588984
+39 3427176507
Caratteristiche principali
Codice
SFE46
Città
Vigevano
Categoria
3 locali
Prezzo
38.813 €
Locali
3
Bagni
1
Mq
74
Box
1
Piano
4
Classe energetica
G
Stato Immobile
Buono
Grado
Medio
Posizione
Periferia
Panorama
Vista Aperta
Orientamento
Nord Ovest Sud Est
Giardino
Cortile
Arredi
Semi Arredato
Tipo Soggiorno
Sala da Pranzo
Tipo Cucina
A Vista
Riscaldamento
Centralizzato
Tipo Riscaldam.
Caldaia
Tipo Impianto
Radiatori
Fonte Energetica
Metano
Infissi
Legno Doppio Vetro
Serramenti
Buono
Persiana
Tapparella PVC
Pavim. Giorno
Ceramica
Pavim. Notte
Ceramica
Pavim. Cucina
Ceramica
Pavim. Bagno
Ceramica

Accessori: Aria Condizionata, Zanzariere

Mappa
Via della Gioia 73, Vigevano (PV)
Condividi su
Cookie preference