Italiano
108.450 €

TRILOCALE ALL'ASTA

3 locali in vendita • Magnago - Via della Chiesa, 3
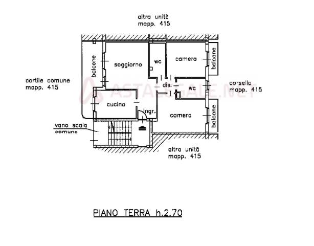
appartamento ad uso civile abitazione posto al piano rialzato, a parte di complesso condominiale denominato "residenza i tigli-scala d" composto da ingresso, cucina, soggiorno, disimpegno, due camere, due bagni e tre balconi, oltre ad annessa e pertinenziale autorimessa doppia al piano interrato. Della superficie commerciale di 105 mq
AFFARI ALL'ASTA è uno studio di consulenza che si occupa di aste immobiliari e saldo stralcio, dove il cliente viene seguito in tutto il percorso relativo all' acquisto tramite aste giudiziarie.
L' immobile viene venduto dal tribunale ed il prezzo indicato si riferisce all' offerta minima.
Contattaci per fissare un appuntamento per avere maggiori informazioni.
Per maggiori informazioni:
MILANO, VIA GIUSEPPE TARTINI, 12 (MI)
+39 3392588984
+39 3427176507

Per maggiori informazioni:
MILANO, VIA GIUSEPPE TARTINI, 12 (MI)
+39 3392588984
+39 3427176507

Caratteristiche principali
Codice
SFE259
Città
Magnago
Categoria
3 locali
Prezzo
108.450 €
Locali
3
Bagni
2
Mq
105
Box
1
Piano
Terra
Classe energetica
G
Stato Immobile
Buono
Grado
Medio
Posizione
Centro
Panorama
Vista Aperta
Orientamento
Nord Ovest Sud Est
Giardino
Cortile
Arredi
Semi Arredato
Tipo Soggiorno
Sala da Pranzo
Tipo Cucina
A Vista
Riscaldamento
Autonomo
Tipo Riscaldam.
Caldaia
Tipo Impianto
Radiatori
Fonte Energetica
Metano
Infissi
Legno Doppio Vetro
Serramenti
Buono
Persiana
Persiana Legno
Pavim. Giorno
Ceramica
Pavim. Notte
Ceramica
Pavim. Cucina
Ceramica
Pavim. Bagno
Ceramica
Mappa
Via della Chiesa 3, Magnago (MI)
Condividi su
Cookie preference