Italiano
130.500 €

TRILOCALE ALL'ASTA

3 locali in vendita • Cusano Milanino - Via Luigi Galvani, 8
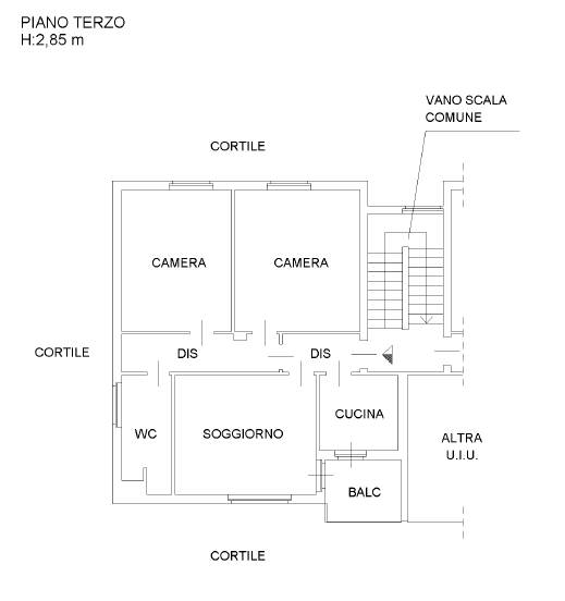
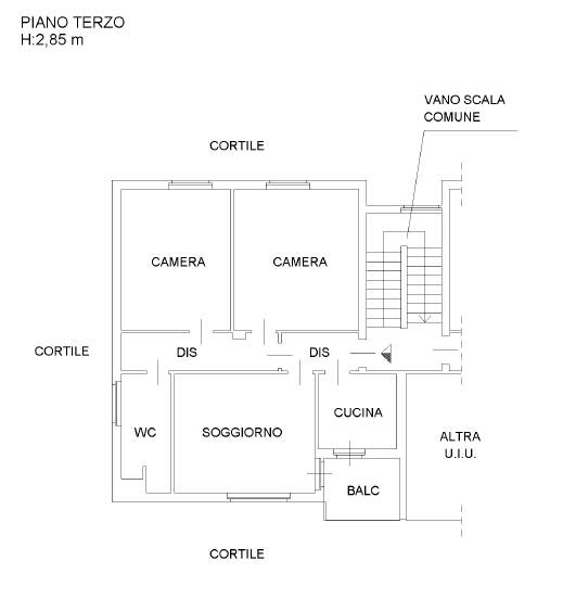
appartamento della superficie commerciale di mq. 88, posto al piano terzo, composto da ingresso, disimpegno, cucina, soggiorno, bagno, due camere, un balcone. cantina al p. seminterrato.
appartamento della superficie commerciale di mq. 88, posto al piano terzo, composto da ingresso, disimpegno, cucina, soggiorno, bagno, due camere, un balcone. cantina al p. seminterrato.
AFFARI ALL'ASTA è uno studio di consulenza che si occupa di aste immobiliari e saldo stralcio, dove il cliente viene seguito in tutto il percorso relativo all' acquisto tramite aste giudiziarie.
L' immobile viene venduto dal tribunale ed il prezzo indicato si riferisce all' offerta minima.
Contattaci per fissare un appuntamento per avere maggiori informazioni.
Per maggiori informazioni:
MILANO, VIA GIUSEPPE TARTINI, 12 (MI)
+39 3392588984
+39 3427176507

Per maggiori informazioni:
MILANO, VIA GIUSEPPE TARTINI, 12 (MI)
+39 3392588984
+39 3427176507
Caratteristiche principali
Codice
SFE164
Città
Cusano Milanino
Categoria
3 locali
Prezzo
130.500 €
Locali
3
Bagni
1
Mq
88
Piano
3
Classe energetica
G
Stato Immobile
Buono
Grado
Medio
Posizione
Periferia
Panorama
Vista Aperta
Orientamento
Nord Ovest Sud Est
Giardino
Cortile
Arredi
Semi Arredato
Tipo Soggiorno
Sala da Pranzo
Tipo Cucina
A Vista
Riscaldamento
Centralizzato
Tipo Riscaldam.
Caldaia
Tipo Impianto
Radiatori
Fonte Energetica
Metano
Infissi
Legno Doppio Vetro
Serramenti
Buono
Persiana
Tapparella PVC
Pavim. Giorno
Ceramica
Pavim. Notte
Parquet
Pavim. Cucina
Ceramica
Pavim. Bagno
Ceramica

Accessori: Aria Condizionata, Pannelli Solari, Porta Blindata

Mappa
Via Luigi Galvani 8, Cusano Milanino (MI)
Condividi su
Cookie preference