Italiano
83.270 €

NEGOZIO ALL'ASTA

Negozio in vendita • Besana in Brianza - Via Giuseppe Garibaldi, 20/A
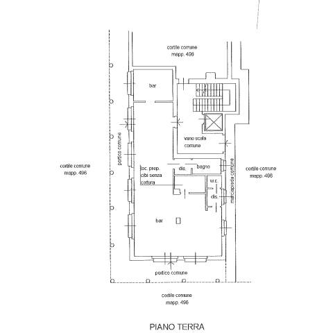
a. bar di mq. 115, piano terra, locale principale oltre retro, vano per preparazione vivande, disimpegni e doppi servizi. b. posto auto scoperto mq. 12. c. posto auto scoperto mq. 13. d. box singolo mq. 15.
a. bar di mq. 115, piano terra, locale principale oltre retro, vano per preparazione vivande, disimpegni e doppi servizi. b. posto auto scoperto mq. 12. c. posto auto scoperto mq. 13. d. box singolo mq. 15.
AFFARI ALL'ASTA è uno studio di consulenza che si occupa di aste immobiliari e saldo stralcio, dove il cliente viene seguito in tutto il percorso relativo all' acquisto tramite aste giudiziarie.
L' immobile viene venduto dal tribunale ed il prezzo indicato si riferisce all' offerta minima.
Contattaci per fissare un appuntamento per avere maggiori informazioni.
Per maggiori informazioni:
MILANO, VIA GIUSEPPE TARTINI, 12 (MI)
+39 3392588984
+39 3427176507

Per maggiori informazioni:
MILANO, VIA GIUSEPPE TARTINI, 12 (MI)
+39 3392588984
+39 3427176507

Caratteristiche principali
Codice
SFE10
Città
Besana in Brianza
Categoria
Negozio
Prezzo
83.270 €
Locali
1
Mq
115
Box
1
Posti auto
2
Piano
Terra
Classe energetica
G
Stato Immobile
Buono
Grado
Medio
Posizione
Centro
Panorama
Vista Aperta
Orientamento
Nord Ovest Sud Est
Arredi
Semi Arredato
Riscaldamento
Centralizzato
Tipo Riscaldam.
Caldaia
Tipo Impianto
Radiatori
Fonte Energetica
Metano
Infissi
Alluminio Doppio Vetro
Serramenti
Buono
Pavimento
Ceramica
Numero Vetrine
Tre

Accessori: Aria Condizionata, Ascensore, Porta Blindata

Mappa
Via Giuseppe Garibaldi 20/A, Besana in Brianza (MB)
Condividi su
Cookie preference