Italiano
129.000 €

TRILOCALE ALL'ASTA

3 locali in vendita • Dairago - Via Luigi Pirandello , 11
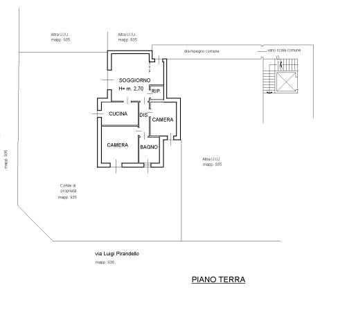
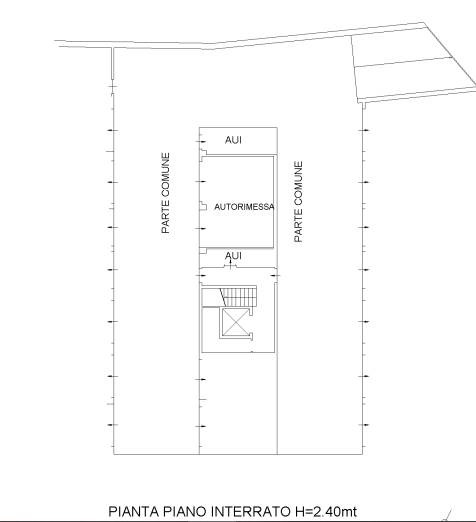
per la piena ed intera proprietà: appartamento della superficie commerciale di 94,12 mq. , posto al piano terra e disposto su un unico livello, composto da tre locali con servizi, cantina e box.
per la piena ed intera proprietà: appartamento della superficie commerciale di 94,12 mq. , posto al piano terra e disposto su un unico livello, composto da tre locali con servizi, cantina e box.
AFFARI ALL'ASTA è uno studio di consulenza che si occupa di aste immobiliari e saldo stralcio, dove il cliente viene seguito in tutto il percorso relativo all' acquisto tramite aste giudiziarie.
L' immobile viene venduto dal tribunale ed il prezzo indicato si riferisce all' offerta minima.
Contattaci per fissare un appuntamento per avere maggiori informazioni.
Per maggiori informazioni:
MILANO, VIA GIUSEPPE TARTINI, 12 (MI)
+39 3392588984
+39 3427176507

Per maggiori informazioni:
MILANO, VIA GIUSEPPE TARTINI, 12 (MI)
+39 3392588984
+39 3427176507
Caratteristiche principali
Codice
SFE1
Città
Dairago
Categoria
3 locali
Prezzo
129.000 €
Locali
3
Bagni
1
Mq
94
Box
1
Piano
Terra
Classe energetica
G
Stato Immobile
Buono
Grado
Medio
Posizione
Centro
Panorama
Vista Aperta
Orientamento
Nord Ovest Sud Est
Giardino
Privato
Arredi
Semi Arredato
Tipo Soggiorno
Sala da Pranzo
Tipo Cucina
A Vista
Riscaldamento
Centralizzato
Tipo Riscaldam.
Caldaia
Tipo Impianto
Pavimento
Fonte Energetica
Metano
Infissi
Legno Doppio Vetro
Serramenti
Buono
Persiana
Tapparella PVC
Pavim. Giorno
Ceramica
Pavim. Notte
Ceramica
Pavim. Cucina
Ceramica
Pavim. Bagno
Ceramica

Accessori: Ascensore, Porta Blindata, Ripostiglio, Tapparelle Elettriche, Video Citofono, Zanzariere

Mappa
Via Luigi Pirandello 11, Dairago (MI)
Condividi su
Cookie preference